Ü-Tiny – Einzugsfertiger Neubau inkl. Fundament & KfW40

Kaufpreis 220.000 €
Zimmer 3
Größe 54 m²
95444 Bayreuth

Objektdaten

Veröffentlicht am: 19. Dezember 2025
Energieausweis: Liegt bei der Besichtigung vor
  • Objektbeschreibung

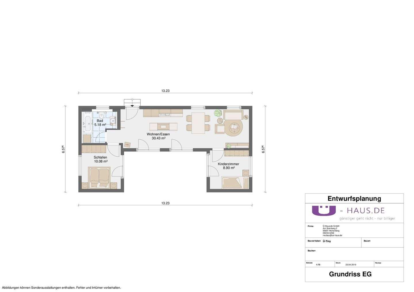
    Das Ü-Tiny steht für modernes, effizientes Wohnen ohne Umwege. Dieser einzugsfertige Neubau überzeugt durch klare Architektur, eine zeitlose Holzfassade und einen intelligent geplanten Grundriss. Alles ist vorbereitet, kein Baustellen-Chaos, kein Nachverhandeln. Einziehen, ankommen, fertig.Mit einer Wohnfläche von ca. 54,6 m² bietet das Ü-Tiny ein überraschend großzügiges Raumgefühl und ist ideal für Singles, Paare oder als nachhaltige Kapitalanlage.RaumaufteilungOffener Wohn-/Essbereich mit ca. 30,4 m² und direktem TerrassenzugangSchlafzimmer mit ca. 10,1 m²Kinder- oder Arbeitszimmer mit ca. 8,9 m²Modernes Badezimmer mit ca. 5,2 m²Der kompakte Grundriss nutzt jeden Quadratmeter sinnvoll. Keine Flure ohne Zweck, kein verschenkter Raum.HighlightsEinzugsfertiger NeubauKfW-40-EffizienzhausGrundstück & Fundament im Angebot enthaltenModerne HolzfassadeEbenerdiges WohnenIdeal für Eigennutzer oder KapitalanlegerDas Ü-Tiny ist die smarte Lösung für alle, die nachhaltig bauen und trotzdem sofort wohnen wollen. Klein in der Fläche, stark im Konzept.
    Nach oben scrollen