Kaufpreis 295.000 €
95447 Bayreuth
Objektdaten
Veröffentlicht am: 20. Dezember 2025
Danke! Bitte bestätige Deine E-Mail-Adresse – wir haben Dir soeben eine Mail geschickt.
Es gab ein Problem beim Absenden. Bitte versuche es erneut.
Bitte bestätige Deine E-Mail-Adresse, um Updates zu erhalten.
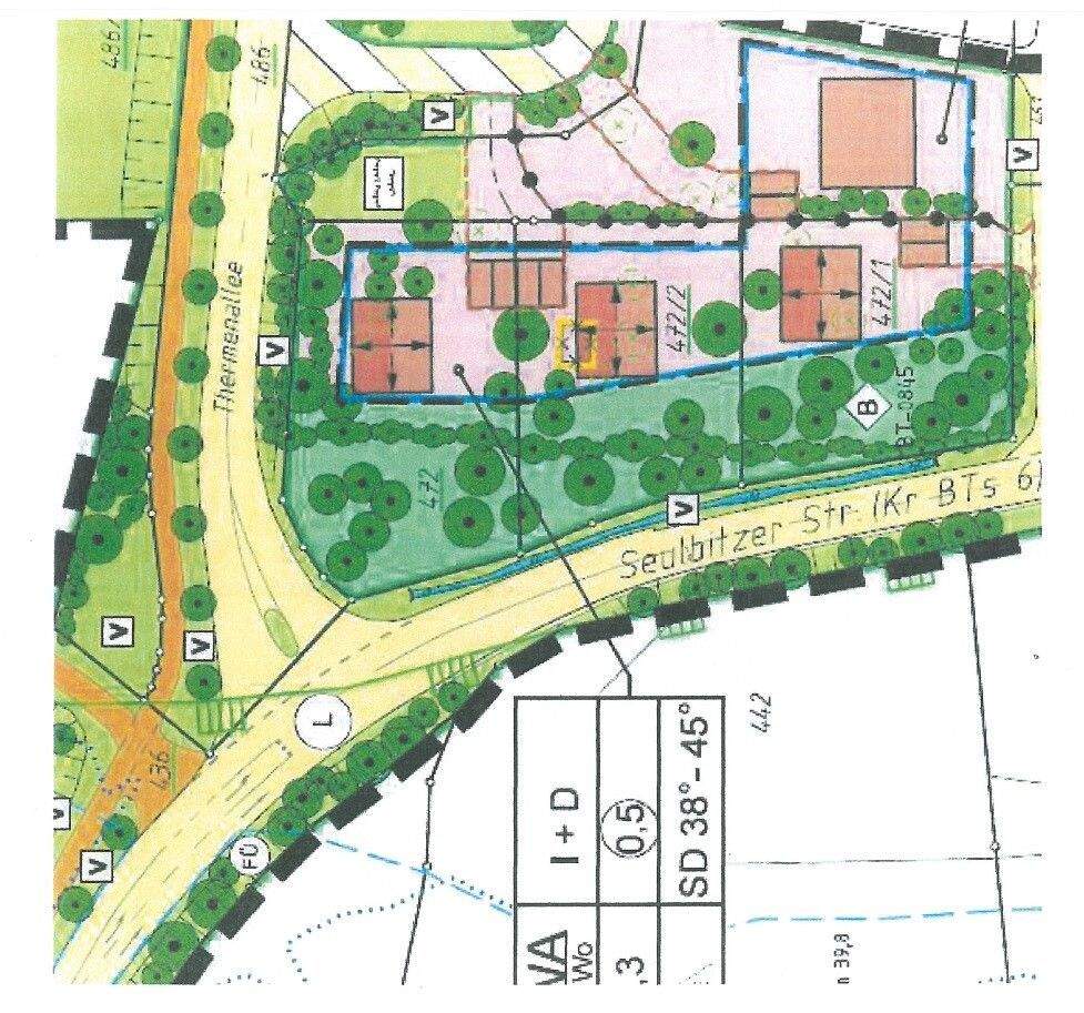
Objektbeschreibung
In absoluter Bestlage von Bayreuth bietet sich Ihnen eine seltene Gelegenheit: Dieses großzügige Grundstück mit ca. 1.292 m² grenzt unmittelbar an die renommierte Eremitage, eine der eindrucksvollsten historischen Parkanlagen der Region. Planung & Bebauung:Ein gültiger Bebauungsplan ermöglicht den Bau Ihres Einfamilienhauses mit Garage - ideal für individuelle Wohnträume. Eine Bebauung mit Mehrfamilienhäusern ist ausgeschlossen, wodurch Ruhe und Privatsphäre garantiert sind.Erschließung & Anschlüsse:Das Grundstück ist teilerschlossen und bietet Anschlüsse für Strom, Wasser und Abwasser direkt in der Straße. Der Kanalanschluss ist bereits bezahlt. Alle weiteren Informationen zur vollständigen Erschließung stellen wir Ihnen auf Anfrage gerne zur Verfügung - starten Sie Ihr Bauprojekt unkompliziert!Attraktive Lage:Ein seltenes Juwel in bester Lage von Bayreuth: großzügig, ruhig und dennoch nur wenige Minuten vom Stadtzentrum entfernt. Perfekt für alle, die komfortables Wohnen mit urbaner Nähe verbinden möchten.
So funktioniert es
- Alle neuen Anzeigen matchen wir kostenlos mit Deinen Suchparametern.
- Passende Angebote senden wir Dir in einer E-Mail pro Tag.
- Du kannst auch verschiedene Suchen anlegen und Dich jederzeit abmelden. Mehr dazu
Wir haben soeben eine E-Mail mit Deinem Suchauftrag an Dich geschickt. – Klicke in dieser Mail auf den Bestätigungslink und schon geht's los. Prüfe ggf. auch Deinen Spamordner.
Es gab ein Problem beim Absenden Deiner E-Mail-Adresse. Bitte versuche es erneut.
WARNUNG: Bitte bestätige Deine E-Mail-Adresse, um regelmäßige Updates zu erhalten.