Kaufpreis 800.000 €
Zimmer 1
17438 Wolgast
Objektdaten
Veröffentlicht am: 20. Dezember 2025
Frei ab: 17. Dezember 2025
Danke! Bitte bestätige Deine E-Mail-Adresse – wir haben Dir soeben eine Mail geschickt.
Es gab ein Problem beim Absenden. Bitte versuche es erneut.
Bitte bestätige Deine E-Mail-Adresse, um Updates zu erhalten.
Objektbeschreibung
Zum Verkauf steht eine attraktive Gewerbeimmobilie in strategisch günstiger Lage von Wolgast, unmittelbar an der neuen Umgehungsstraße und in direkter Nähe zur Zufahrt auf die Insel Usedom. Die Lage bietet hervorragende Voraussetzungen für logistiknahe, produzierende oder dienstleistungsorientierte Nutzungen.
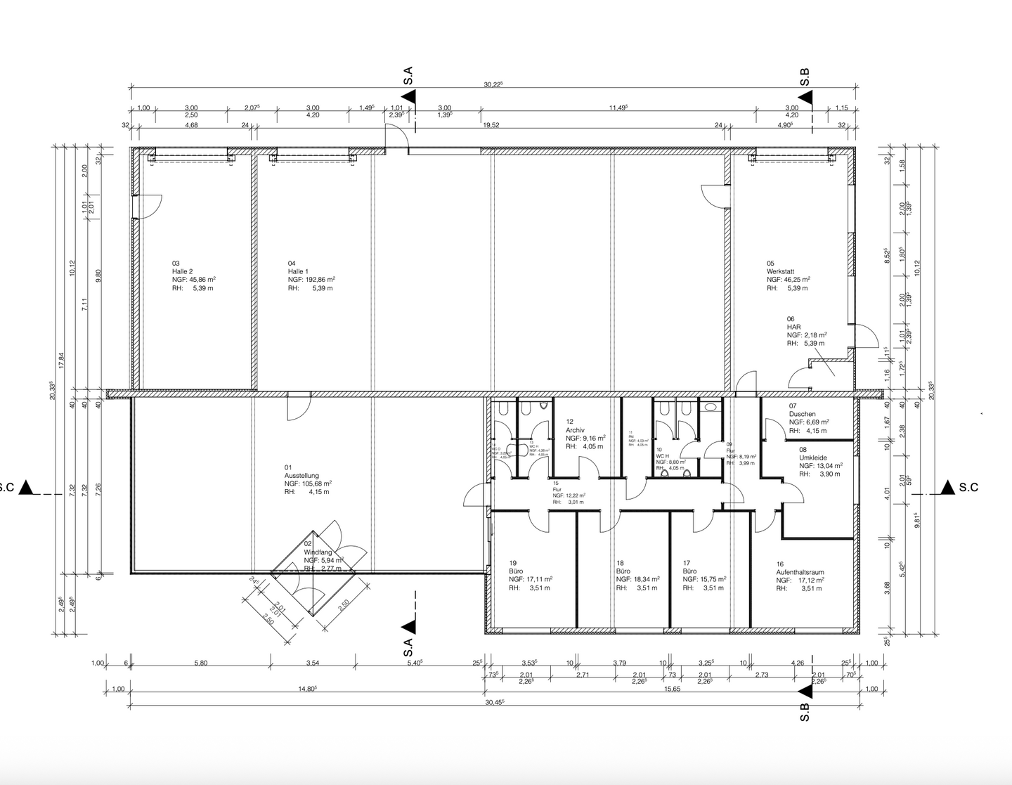
Objekt- und Flächenstruktur:
Die Immobilie verfügt über eine Gesamtnutzfläche von ca. 600 m² auf einem ca. 2.500 m² großen Grundstück. Die Flächen sind funktional gegliedert und ermöglichen eine flexible Nutzung:
-ca. 105 m² Ausstellungsfläche
-ca. 275 m² Lagerfläche
-ca. 50 m² Werkstattfläche
-ca. 135,92 m² Bürofläche
-ca. 30 m² Dachboden / Nebenfläche
Die vorhandene Flächenstruktur erlaubt sowohl eine Einzelnutzung als auch eine Kombination aus Betrieb, Verwaltung und Wohnen (Geschäftsführerwohnung).
Technische Ausstattung & Infrastruktur:
-Gas-Brennwertheizung (ca. 10 Jahre alt)
-Solare Warmwasserbereitung
-Photovoltaikanlage
-Holzkessel vorhanden (nicht mehr in Betrieb; Umbau vorbereitet)
-Großzügige Außenflächen inkl. Carportanlage für --Transporter (Hochdach) mit drei Kammern und -zusätzlichem Gerätecontainer
-Alle Anschluss- und Erschließungskosten vollständig bezahlt
-Glasfaseranschluss liegt an (Hausanschluss noch nicht ausgeführt)
-Dienstbarkeit im Grundstücksstreifen zur Leeraner Straße (Gasversorgung)
Entwicklungsperspektive:
Ein wesentliches Investmentmerkmal ist die Option zum Zukauf eines angrenzenden Grundstücks mit ca. 1.500 m² Fläche. Die Umwidmung in Bauland befindet sich derzeit in Bearbeitung. Dies eröffnet zusätzliches Entwicklungs- und Erweiterungspotenzial für Neubauten, Hallenerweiterungen oder ergänzende Nutzungen.
Investmentprofil:
Die Immobilie eignet sich besonders für:
-Eigennutzer mit Expansionsbedarf
-Projektentwickler mit Fokus auf Gewerbe / Logistik / Handwerk
-Investoren mit Interesse an Standortentwicklung im Umfeld Usedom
-Kombination aus Gewerbeimmobilie und Betriebswohnung
Fazit:
Diese Gewerbeimmobilie bietet eine überdurchschnittlich gute Lagequalität, eine klare Flächenstruktur, bereits investierte Infrastruktur sowie konkrete Erweiterungsoptionen. Durch die Nähe zur Insel Usedom, zur Peene-Werft und zur neuen Verkehrsanbindung stellt das Objekt eine langfristig werthaltige Investitionsmöglichkeit dar.
So funktioniert es
- Alle neuen Anzeigen matchen wir kostenlos mit Deinen Suchparametern.
- Passende Angebote senden wir Dir in einer E-Mail pro Tag.
- Du kannst auch verschiedene Suchen anlegen und Dich jederzeit abmelden. Mehr dazu
Wir haben soeben eine E-Mail mit Deinem Suchauftrag an Dich geschickt. – Klicke in dieser Mail auf den Bestätigungslink und schon geht's los. Prüfe ggf. auch Deinen Spamordner.
Es gab ein Problem beim Absenden Deiner E-Mail-Adresse. Bitte versuche es erneut.
WARNUNG: Bitte bestätige Deine E-Mail-Adresse, um regelmäßige Updates zu erhalten.