Kaufpreis 589.000 €
Zimmer 4
Größe 173 m²
34346 Hann. Münden
Objektdaten
Veröffentlicht am: 21. Dezember 2025
Energieausweis: Liegt bei der Besichtigung vor
Danke! Bitte bestätige Deine E-Mail-Adresse – wir haben Dir soeben eine Mail geschickt.
Es gab ein Problem beim Absenden. Bitte versuche es erneut.
Bitte bestätige Deine E-Mail-Adresse, um Updates zu erhalten.
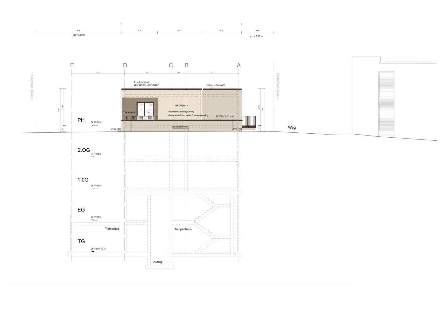
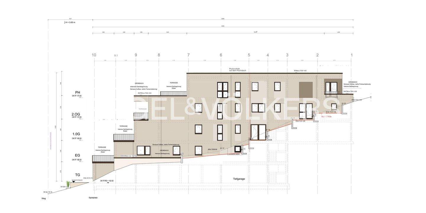
Objektbeschreibung
Das Neubauprojekt umfasst zwei luxuriöse Wohnhäuser mitinsgesamt zwölf exklusiven Eigentumswohnungen. DieWohnungsgrößen erstrecken sich von 105 bis zu 184Quadratmetern und bieten damit viel Raum für individuelleWohnansprüche. Große Fensterflächen, offene Raumkonzepte undhochwertige Materialien sorgen in allen Wohnungen für eineerstklassige Wohnatmosphäre und ein Ambiente auf gehobenemNiveau.Die angebotene außergewöhnliche 4-Zimmer-Wohnung vereintmodernes Design und höchste Wohnqualität. Das Herzstück derWohnung bildet die großzügige Wohnküche mit offenem Wohnund Essbereich. Bodentiefe Fensterfronten schaffen einennahtlosen Übergang zur weitläufigen Sonnen-Terrasse und eröffneneinen beeindruckenden Ausblick über ganz Hann. Münden.Die Wohnung verfügt über zwei elegant gestaltete Schlafzimmer, diedurch ihre ruhige Lage und hochwertige Materialien ein hohes Maßan Komfort bieten. Sie wird ergänzt durch weitere flexibelnutzbare Zimmer, die sich ideal als Arbeits-, Gäste- oderAnkleidezimmer eignenZwei hochwertige Badezimmer mit edlen Armaturen, ausgewähltenMaterialien und modernem Design rundet den exklusiven Charakterder Immobilie ab.Zu den Gebäuden gehören eine großzügige Tiefgarage mit je zweiStellplätzen, die den Bewohnern eine bequeme Parksituationermöglichen. Ein direkter Zugang vom Garagenbereich ins Haussorgt für zusätzlichen Komfort und Barrierefreiheit.Die Fertigstellung des Projekts ist zu Beginn 2026 geplant. Abdiesem Zeitpunkt stehen die Wohnungen bezugsbereit zurVerfügung und bieten ein hochwertiges, modernes Zuhause inruhiger und einmaliger Lage Hann. Mündens.
So funktioniert es
- Alle neuen Anzeigen matchen wir kostenlos mit Deinen Suchparametern.
- Passende Angebote senden wir Dir in einer E-Mail pro Tag.
- Du kannst auch verschiedene Suchen anlegen und Dich jederzeit abmelden. Mehr dazu
Wir haben soeben eine E-Mail mit Deinem Suchauftrag an Dich geschickt. – Klicke in dieser Mail auf den Bestätigungslink und schon geht's los. Prüfe ggf. auch Deinen Spamordner.
Es gab ein Problem beim Absenden Deiner E-Mail-Adresse. Bitte versuche es erneut.
WARNUNG: Bitte bestätige Deine E-Mail-Adresse, um regelmäßige Updates zu erhalten.