Kaufpreis 407.000 €
Zimmer 3
Größe 104 m²
34346 Hann. Münden
Objektdaten
Veröffentlicht am: 21. Dezember 2025
Energieausweis: Liegt bei der Besichtigung vor
Danke! Bitte bestätige Deine E-Mail-Adresse – wir haben Dir soeben eine Mail geschickt.
Es gab ein Problem beim Absenden. Bitte versuche es erneut.
Bitte bestätige Deine E-Mail-Adresse, um Updates zu erhalten.
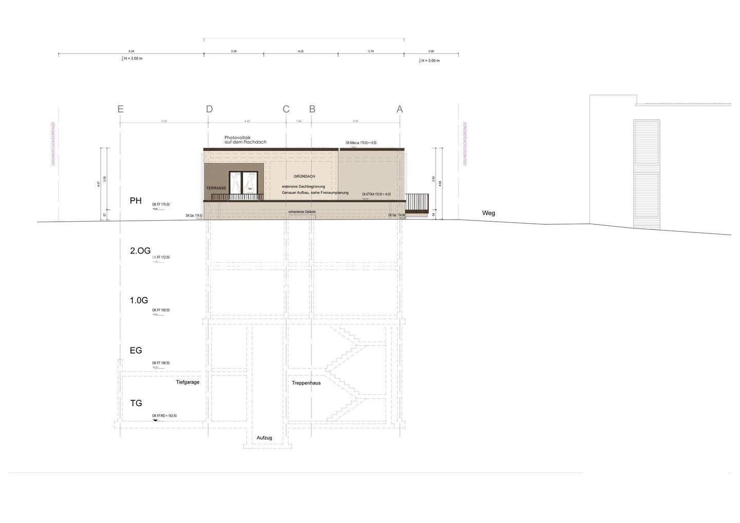
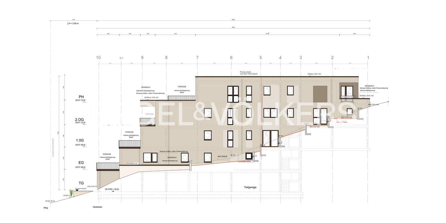
Objektbeschreibung
Das Neubauprojekt umfasst zwei luxuriöse Wohnhäuser mit insgesamt zwölf exklusiven Eigentumswohnungen. Die Wohnungsgrößen erstrecken sich von 105 bis zu 184 Quadratmetern und bieten damit viel Raum für individuelle Wohnansprüche. Große Fensterflächen, offene Raumkonzepte und hochwertige Materialien sorgen in allen Wohnungen für eine erstklassige Wohnatmosphäre und ein Ambiente auf gehobenem Niveau.Die angebotene außergewöhnliche 3-Zimmer-Wohnung vereint modernes Design und höchste Wohnqualität. Das Herzstück der Wohnung bildet die großzügige Wohnküche mit offenem Wohn- und Essbereich. Die Wohnung verfügt über zwei elegant gestaltete Schlafzimmer, die durch ihre ruhige Lage und hochwertige Materialien ein hohes Maß an Komfort bieten.Ein hochwertiges Badezimmer mit edlen Armaturen, ausgewählten Materialien und modernem Design rundet den exklusiven Charakter der Immobilie ab.Am Wohnzimmer ist ein attraktiver Balkon mit Westausrichtung gelegen, der zu schönen Stunden im Freien einlädt. Zu den Gebäuden gehören eine großzügige Tiefgarage mit je zwei Stellplätzen, die den Bewohnern eine bequeme Parksituation ermöglichen. Ein direkter Zugang vom Garagenbereich ins Haus sorgt für zusätzlichen Komfort und Barrierefreiheit.Die Fertigstellung des Projekts ist zu Beginn 2026 geplant. Ab diesem Zeitpunkt stehen die Wohnungen bezugsbereit zur Verfügung und bieten ein hochwertiges, modernes Zuhause in ruhiger und einmaliger Lage Hann. Mündens.
So funktioniert es
- Alle neuen Anzeigen matchen wir kostenlos mit Deinen Suchparametern.
- Passende Angebote senden wir Dir in einer E-Mail pro Tag.
- Du kannst auch verschiedene Suchen anlegen und Dich jederzeit abmelden. Mehr dazu
Wir haben soeben eine E-Mail mit Deinem Suchauftrag an Dich geschickt. – Klicke in dieser Mail auf den Bestätigungslink und schon geht's los. Prüfe ggf. auch Deinen Spamordner.
Es gab ein Problem beim Absenden Deiner E-Mail-Adresse. Bitte versuche es erneut.
WARNUNG: Bitte bestätige Deine E-Mail-Adresse, um regelmäßige Updates zu erhalten.