Kaufpreis 219.000 €
Zimmer 2
Größe 61 m²
26419 Schortens
Objektdaten
Veröffentlicht am: 24. Dezember 2025
Energieausweis: Liegt bei der Besichtigung vor
Danke! Bitte bestätige Deine E-Mail-Adresse – wir haben Dir soeben eine Mail geschickt.
Es gab ein Problem beim Absenden. Bitte versuche es erneut.
Bitte bestätige Deine E-Mail-Adresse, um Updates zu erhalten.
Objektbeschreibung
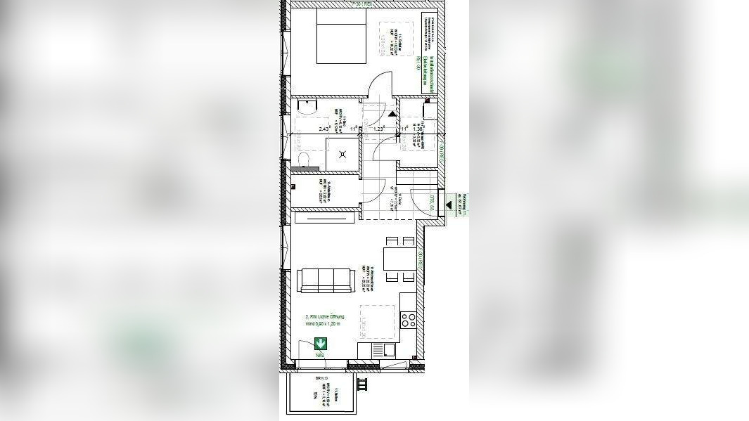
MODERNES WOHN- UND GESCHÄFTSHAUSIn zentraler Lage von Schortens entsteht ein hochwertiges Wohn- und Geschäftshaus, das modernes Wohnen und attraktive Gewerbeflächen optimal vereint. Das architektonisch durchdachte Gebäude umfasst zwei großzügige Gewerbeeinheiten sowie neun perfekt geschnittene Wohnungen mit renditestarken Grundrissen. Errichtet wird das Haus nach dem energieeffizienten KfW-Standard - für nachhaltiges Wohnen und attraktive finanzielle Vorteile für Investoren.m 2. Obergeschoss links erwartet Sie diese lichtdurchflutete 2-Zimmerwohnung mit ca. 61,67 m² Wohnfläche. Der offene Wohn-, Ess- und Kochbereich schafft eine freundliche Atmosphäre und bietet ausreichend Platz für gemütliches Wohnen und geselliges Beisammensein.Das Badezimmer ist außenliegend und hochwertig ausgestattet - inklusive Dusche und modernen Armaturen. Zwei separate Abstellräume sorgen für zusätzlichen Stauraum und ermöglichen eine ordentliche Organisation Ihres Zuhauses.Genießen Sie Ihren Morgenkaffee oder entspannte Stunden auf dem Balkon mit Ost-Ausrichtung, der bequem vom Wohnbereich aus zugänglich ist.Das Haus wird nach dem strengen KfW 40 Standard gebaut und setzt auf nachhaltige Technologien wie eine Luftwasserwärmepumpe und dreifach verglaste Fenster. Fußbodenheizung in allen Räumen sowie elektrische Rollläden gewährleisten zusätzlichen Komfort. Ein Fahrstuhl garantiert bequemen Zugang zu Ihrer Wohnung. Parkmöglichkeiten und ein Fahrradschuppen sind ebenfalls vorhanden.Diese Neubauwohnung bietet Ihnen die Chance, modernen Wohnkomfort in zentraler Lage zu kaufen - ideal für Singles, Paare oder als Investition.Bei Fragen oder Interesse stehen wir Ihnen gern zur Verfügung und senden Ihnen weitere Unterlagen zu.
So funktioniert es
- Alle neuen Anzeigen matchen wir kostenlos mit Deinen Suchparametern.
- Passende Angebote senden wir Dir in einer E-Mail pro Tag.
- Du kannst auch verschiedene Suchen anlegen und Dich jederzeit abmelden. Mehr dazu
Wir haben soeben eine E-Mail mit Deinem Suchauftrag an Dich geschickt. – Klicke in dieser Mail auf den Bestätigungslink und schon geht's los. Prüfe ggf. auch Deinen Spamordner.
Es gab ein Problem beim Absenden Deiner E-Mail-Adresse. Bitte versuche es erneut.
WARNUNG: Bitte bestätige Deine E-Mail-Adresse, um regelmäßige Updates zu erhalten.