Kaufpreis 221.000 €
Zimmer 2
Größe 62 m²
26419 Schortens
Objektdaten
Veröffentlicht am: 24. Dezember 2025
Energieausweis: Liegt bei der Besichtigung vor
Danke! Bitte bestätige Deine E-Mail-Adresse – wir haben Dir soeben eine Mail geschickt.
Es gab ein Problem beim Absenden. Bitte versuche es erneut.
Bitte bestätige Deine E-Mail-Adresse, um Updates zu erhalten.
Objektbeschreibung
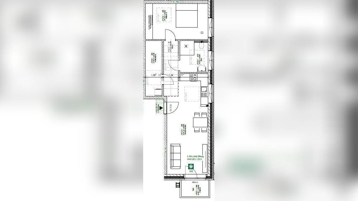
MODERNES WOHN- UND GESCHÄFTSHAUSIn zentraler Lage von Schortens entsteht ein hochwertiges Wohn- und Geschäftshaus, das modernes Wohnen und attraktive Gewerbeflächen optimal vereint. Das architektonisch durchdachte Gebäude umfasst zwei großzügige Gewerbeeinheiten sowie neun perfekt geschnittene Wohnungen mit renditestarken Grundrissen. Errichtet wird das Haus nach dem energieeffizienten KfW 40 -Standard - für nachhaltiges Wohnen und attraktive finanzielle Vorteile für Investoren.Im 2. Obergeschoss rechts erwartet Sie diese helle 2-Zimmer-Wohnung mit rund 62 m² Wohnfläche. Der offene Wohn-, Ess- und Kochbereich bietet ausreichend Platz für kreative Einrichtungsideen und lädt zum Entspannen ein.Das Badezimmer ist außenliegend, hochwertig ausgestattet und verfügt über eine Dusche - für mehr Komfort im Alltag. Ein praktischer Abstellraum sorgt für zusätzlichen Stauraum.Der Balkon mit Ost-Ausrichtung ist perfekt, um den Morgen bei Sonnenlicht zu genießen und einen energiegeladenen Start in den Tag zu erleben.Der Neubau wird nach dem modernen KfW 40 Standard errichtet und punktet mit nachhaltiger Technik: Luftwasserwärmepumpe, dreifach verglaste Fenster und Fußbodenheizung sorgen für effizientes Heizen und angenehmes Raumklima. Elektrische Rollläden bieten zusätzlichen Komfort. Ein Fahrstuhl bringt Sie bequem in Ihre neue Wohnung. Parkplätze und ein Fahrradschuppen ergänzen das Angebot.Diese Wohnung eignet sich hervorragend für alle, die ein modernes, nachhaltiges Zuhause suchen - egal ob zur Eigennutzung oder als Kapitalanlage.Bei Interesse stellen wir Ihnen gern weitere Informationen und Unterlagen zur Verfügung.
So funktioniert es
- Alle neuen Anzeigen matchen wir kostenlos mit Deinen Suchparametern.
- Passende Angebote senden wir Dir in einer E-Mail pro Tag.
- Du kannst auch verschiedene Suchen anlegen und Dich jederzeit abmelden. Mehr dazu
Wir haben soeben eine E-Mail mit Deinem Suchauftrag an Dich geschickt. – Klicke in dieser Mail auf den Bestätigungslink und schon geht's los. Prüfe ggf. auch Deinen Spamordner.
Es gab ein Problem beim Absenden Deiner E-Mail-Adresse. Bitte versuche es erneut.
WARNUNG: Bitte bestätige Deine E-Mail-Adresse, um regelmäßige Updates zu erhalten.