Wohnen in Unterrombach

Kaufpreis 438.000 €
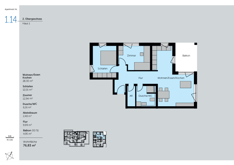
Zimmer 2
Größe 76 m²
73434 Aalen

Objektdaten

Veröffentlicht am: 8. Januar 2026
Energieausweis: Liegt bei der Besichtigung vor
Neu

Über ähnliche Angebote direkt informiert werden

  • Objektbeschreibung

    Im Aalener Stadtteil Unterrombach entstehen 15 Eigentumswohnungen und eine Gewerbeeinheit.

    Ähnliche Angebote

    So funktioniert es

    • Alle neuen Anzeigen matchen wir kostenlos mit Deinen Suchparametern.
    • Passende Angebote senden wir Dir in einer E-Mail pro Tag.
    • Du kannst auch verschiedene Suchen anlegen und Dich jederzeit abmelden. Mehr dazu
    Nach oben scrollen