Kaufpreis 150.000 €
Zimmer 10
Größe 222 m²
66571 Eppelborn
Objektdaten
Veröffentlicht am: 9. Januar 2026
Baujahr: 1900
Energieausweis: Liegt bei der Besichtigung vor
Danke! Bitte bestätige Deine E-Mail-Adresse – wir haben Dir soeben eine Mail geschickt.
Es gab ein Problem beim Absenden. Bitte versuche es erneut.
Bitte bestätige Deine E-Mail-Adresse, um Updates zu erhalten.
Objektbeschreibung
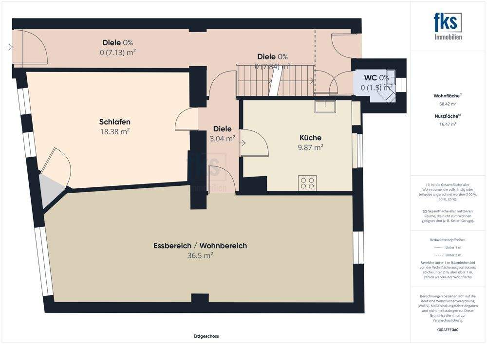
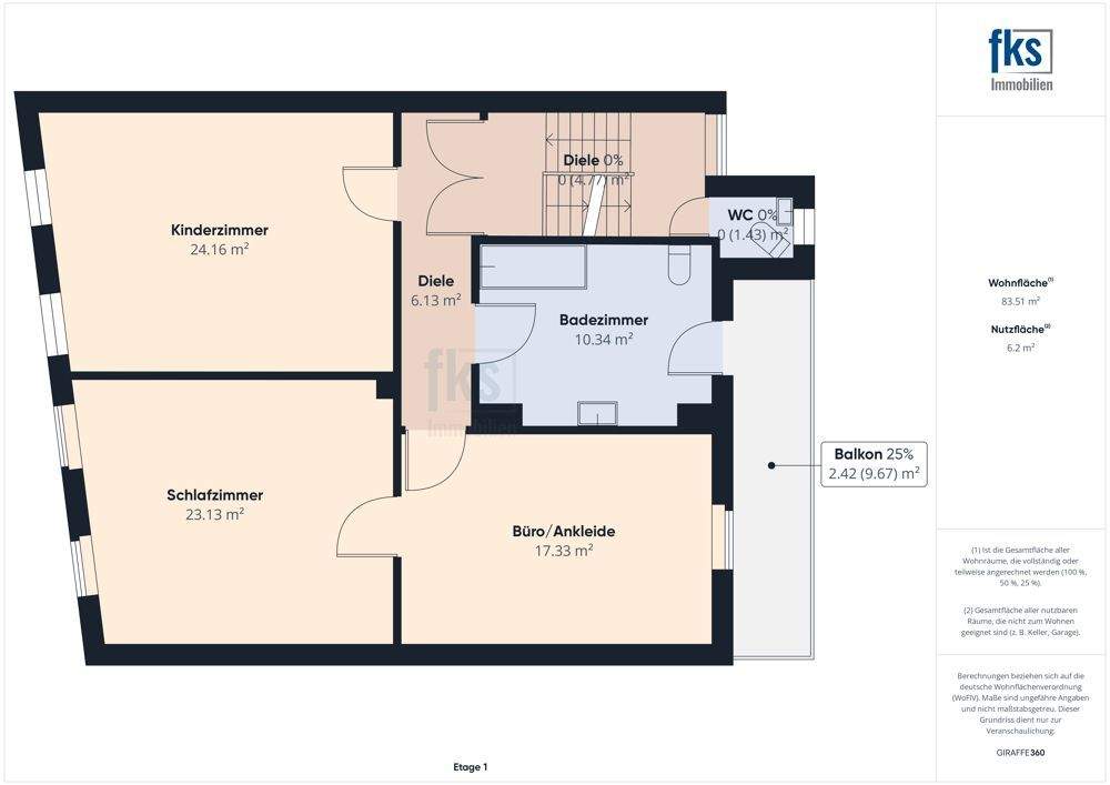
Dieses um etwa 1900 errichtete, einseitig angebaute Wohnhaus bietet Kapitalanlegern eine äußerst interessante Möglichkeit, Wohnraum flexibel zu gestalten und nachhaltig zu vermieten. Die Immobilie wird aktuell eigengenutzt, verfügt jedoch über ideale Voraussetzungen, um mit überschaubarem Aufwand in drei separate Wohneinheiten aufgeteilt zu werden. Die vermietbare Fläche beträgt ca. 222m².Die technische Basis ist solide: Eine Zentralheizung aus dem Jahr 2011 sorgt für eine zuverlässige Wärmeversorgung, die Kunststofffenster mit Doppelverglasung schaffen zeitgemäße energetische Voraussetzungen. Die Stormversorgung sollte überarbeitet werden, das Dach stammt aus einem älteren Baujahr und bietet mittelfristig Modernisierungspotenzial.Damit verbindet das Objekt eine stabile Grundsubstanz, großes Vermietungspotenzial und die Möglichkeit, durch die Ergänzung von Küchen und einzelnen Sanierungsmaßnahmen - insbesondere im Bereich Dach und Elektro - zusätzliche Wertschöpfung zu erzielen. Erdgeschoss - ca. 68 m²Das Erdgeschoss eignet sich hervorragend zur Umwandlung in eine kompakte, gut vermietbare Wohnung. Der Grundriss wird aktuell durch einen offenen Wohn- und Essbereich geprägt, der direkt an die Küche anschließt und ein großzügiges Raumgefühl vermittelt. Ergänzt wird die Etage durch ein weiteres Zimmer, das flexibel als Schlafzimmer, Büro oder Gästezimmer genutzt werden kann. Für eine eigenständige Vermietbarkeit wäre die Errichtung eines Badezimmers notwendig. Aufgrund der vorhandenen Platzverhältnisse lässt sich diese Maßnahme gut integrieren und eröffnet die Möglichkeit, eine ansprechende Einheit mit funktionalem Wohncharakter zu schaffen.Auch ein Zugang zum Garten wäre in dieser Einheit denkbar.Obergeschoss - ca. 83 m² (Balkon zu 1/4 mit 2,92 m² darin enthalten)Im Obergeschoss steht eine großzügige Fläche zur Verfügung, die bereits eine klare Raumaufteilung besitzt. Neben einem bestehenden Badezimmer bietet das Geschoss drei weitere Zimmer. Ein weiterer Pluspunkt ist der zugängliche Balkon, der Mieter ein wichtiger Pluspunkt ist.Um die Etage als abgeschlossene Wohneinheit zu nutzen, müsste noch eine Küche eingebaut werden. Die räumlichen Voraussetzungen dafür sind problemlos gegeben, sodass sich mit wenigen Anpassungen eine attraktive und gut vermietbare Wohnung realisieren lässt.Dachgeschoss - ca. 70 m²Das Dachgeschoss überzeugt mit einem sehr guten Raumangebot und vielfältigen Nutzungsmöglichkeiten. Es umfasst ein Badezimmer sowie vier weitere Zimmer, die flexibel gestaltbar sind - vom Schlafzimmer über Wohnbereiche bis hin zu Arbeits- oder Hobbyräumen. Auch hier wäre der Einbau einer Küche notwendig, um eine autarke Wohneinheit zu schaffen.
So funktioniert es
- Alle neuen Anzeigen matchen wir kostenlos mit Deinen Suchparametern.
- Passende Angebote senden wir Dir in einer E-Mail pro Tag.
- Du kannst auch verschiedene Suchen anlegen und Dich jederzeit abmelden. Mehr dazu
Wir haben soeben eine E-Mail mit Deinem Suchauftrag an Dich geschickt. – Klicke in dieser Mail auf den Bestätigungslink und schon geht's los. Prüfe ggf. auch Deinen Spamordner.
Es gab ein Problem beim Absenden Deiner E-Mail-Adresse. Bitte versuche es erneut.
WARNUNG: Bitte bestätige Deine E-Mail-Adresse, um regelmäßige Updates zu erhalten.