Kaufpreis 540.000 €
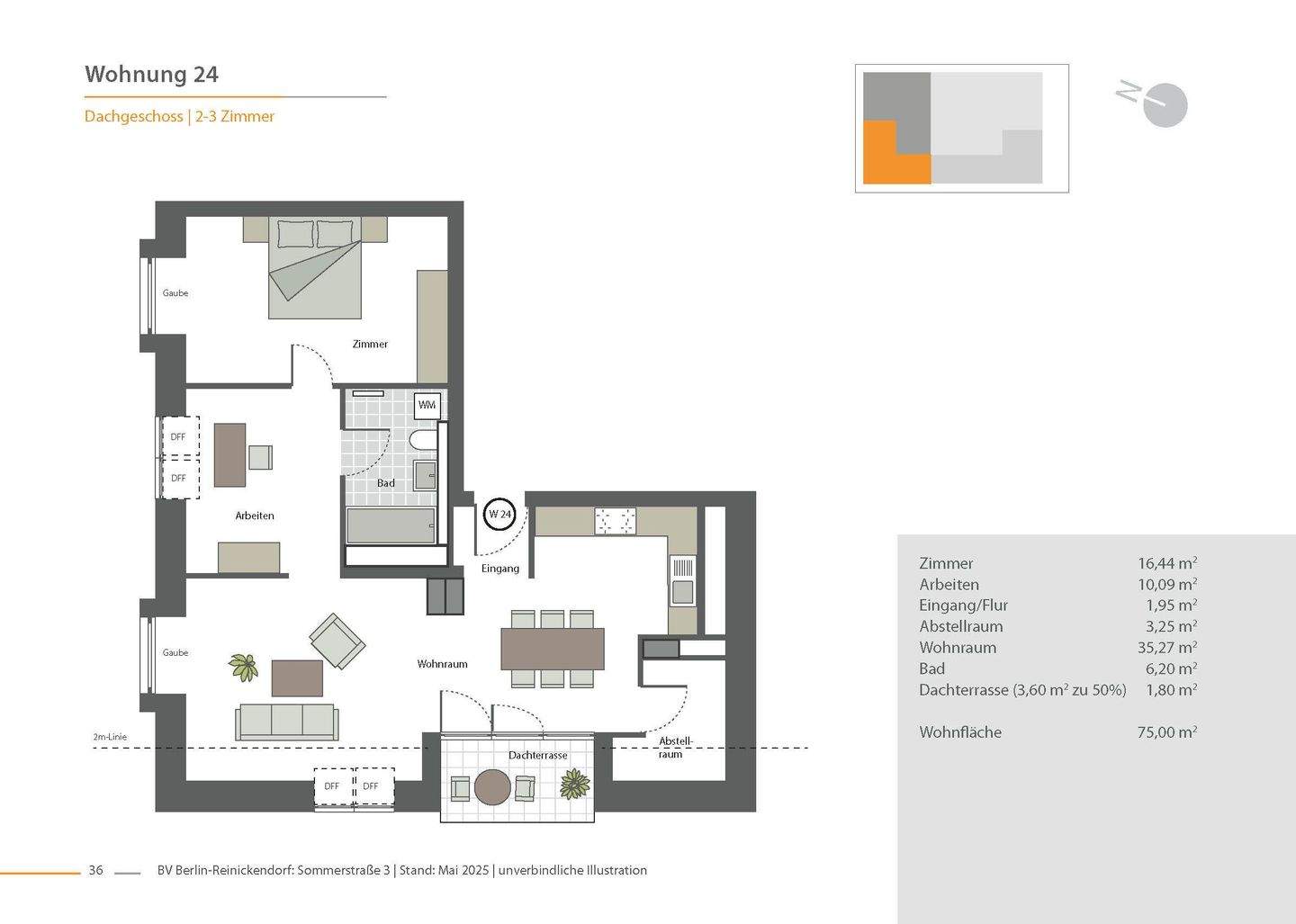
Zimmer 3
Größe 75 m²
13409 Berlin
Objektdaten
Veröffentlicht am: 12. Januar 2026
Energieausweis: Liegt bei der Besichtigung vor
Danke! Bitte bestätige Deine E-Mail-Adresse – wir haben Dir soeben eine Mail geschickt.
Es gab ein Problem beim Absenden. Bitte versuche es erneut.
Bitte bestätige Deine E-Mail-Adresse, um Updates zu erhalten.
Objektbeschreibung
OBJEKT:In zentraler Lage von Berlin-Reinickendorf, angrenzend an die Bezirke Mitte und Pankow, entsteht in der Sommerstraße 3 ein modernes Eckgebäude mit insgesamt 25 Eigentumswohnungen. Das Gebäude gliedert sich architektonisch elegant in zwei Seiten: Zur Hoppestraße hin erstrecken sich mehrere Geschosse mit einem klassischen Mansardflachdach, während zur Sommerstraße ein klar gegliederter viergeschossiger Baukörper mit Flachdach realisiert wird. Beide Dächer werden mit einer extensiven Begrünung ausgestattet, die zur ökologischen Qualität und zur Wärmeregulierung beiträgt.?Es entstehen Wohnungen mit 2, 3 und 4 Zimmern, wobei der Schwerpunkt auf praktisch geschnittenen Drei-Zimmer-Wohnungen liegt - ideal für Paare, Familien und Singles mit Platzanspruch. Die Wohnflächen variieren zwischen ca. 46 m² und ca. 95 m², sodass für unterschiedliche Lebenssituationen passende Grundrisse zur Verfügung stehen.?Das Gebäude ist unterkellert. Zu jeder Wohnung gehört ein eigener Kellerraum. Der Zugang zu den Wohnungen erfolgt komfortabel über ein zentral gelegenes Treppenhaus mit Aufzug, das alle Etagen - vom Kellergeschoss bis ins Dachgeschoss - stufenlos miteinander verbindet.?Ein besonderes Highlight ist der begrünte Innenhof mit integriertem Spielplatz, der sowohl als Rückzugsort als auch als Treffpunkt für Familien und Nachbarn dient. Zusätzlich wird auf dem Dach eine Photovoltaikanlage installiert, die einen nachhaltigen Beitrag zur Energieversorgung leistet und das zukunftsorientierte Konzept des Gebäudes unterstreicht.?Mit seiner durchdachten Architektur, den modernen Ausstattungsmerkmalen und dem Fokus auf Nachhaltigkeit und Wohnqualität bietet dieses Objekt ein ideales Zuhause in urbaner und gleichzeitig naturnaher Lage.
So funktioniert es
- Alle neuen Anzeigen matchen wir kostenlos mit Deinen Suchparametern.
- Passende Angebote senden wir Dir in einer E-Mail pro Tag.
- Du kannst auch verschiedene Suchen anlegen und Dich jederzeit abmelden. Mehr dazu
Wir haben soeben eine E-Mail mit Deinem Suchauftrag an Dich geschickt. – Klicke in dieser Mail auf den Bestätigungslink und schon geht's los. Prüfe ggf. auch Deinen Spamordner.
Es gab ein Problem beim Absenden Deiner E-Mail-Adresse. Bitte versuche es erneut.
WARNUNG: Bitte bestätige Deine E-Mail-Adresse, um regelmäßige Updates zu erhalten.