Kaufpreis 349.000 €
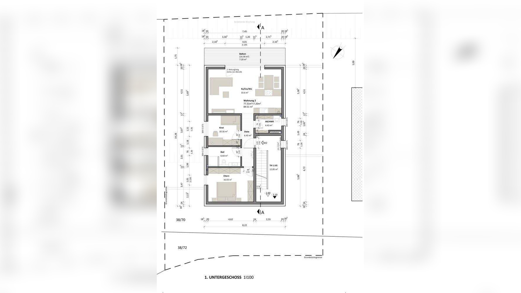
Zimmer 3
Größe 84 m²
66583 Spiesen-Elversberg
Objektdaten
Veröffentlicht am: 13. Januar 2026
Energieausweis: Liegt bei der Besichtigung vor
Danke! Bitte bestätige Deine E-Mail-Adresse – wir haben Dir soeben eine Mail geschickt.
Es gab ein Problem beim Absenden. Bitte versuche es erneut.
Bitte bestätige Deine E-Mail-Adresse, um Updates zu erhalten.
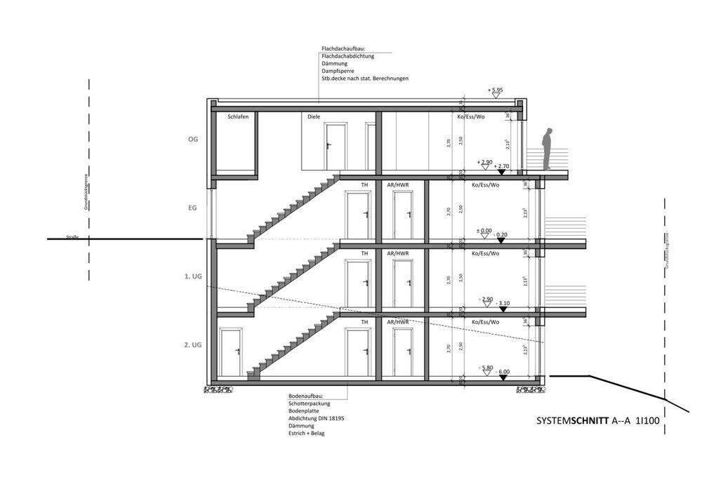
Objektbeschreibung
In Spitzenlage von Spiesen-Elversberg, befindet sich der energetisch nach neuestem Standard errichtete Neubau mit nur 4 Wohneinheiten. Das Gebäude wird im Jahr 2026 schlüsselfertig errichtet.Diese nun noch verfügbare Wohnung im Untergeschoss bietet den zukünftigen Bewohnern mit 3 Zimmern, Küche, Bad, Abstellraum und Balkon einen wunderschönen neuen Lebensmittelpunkt.Der Neubau des erfahrenen Bauträgers bietet dabei auf 4 Etagen mit jeweils nur einer Wohnung pro Ebene Ruhe, Qualität und eine altersgerechte barrierearme Erschließung.Vor dem Gebäude befinden sich optional erwerbbare (Außen-) Stellplätze (12.000 € Kaufpreis).Die Luft-Wärmepumpe mit integrierter Warmwasseraufbereitung sorgt in Kombination mit der Dämmung des Gebäudes für planbar niedrige Energiekosten.Die Ausstattung der Wohnung, die schlüsselfertig für Sie errichtet wird, lässt dabei keine Wünsche offen und vermittelt einen ebenso wertigen Eindruck wie die gesamte Immobilie.Gerne informieren wir Sie in einem persönlichen Gespräch ausführlich und detailliert zu diesem Kaufobjekt und treffen uns mit Ihnen auch gerne unverbindlich zu einer Besichtigung vor Ort.Wir freuen uns auf Ihre Anfragen, bitte übermitteln Sie uns dabei auch Ihre vollständigen Kontaktdaten.
So funktioniert es
- Alle neuen Anzeigen matchen wir kostenlos mit Deinen Suchparametern.
- Passende Angebote senden wir Dir in einer E-Mail pro Tag.
- Du kannst auch verschiedene Suchen anlegen und Dich jederzeit abmelden. Mehr dazu
Wir haben soeben eine E-Mail mit Deinem Suchauftrag an Dich geschickt. – Klicke in dieser Mail auf den Bestätigungslink und schon geht's los. Prüfe ggf. auch Deinen Spamordner.
Es gab ein Problem beim Absenden Deiner E-Mail-Adresse. Bitte versuche es erneut.
WARNUNG: Bitte bestätige Deine E-Mail-Adresse, um regelmäßige Updates zu erhalten.