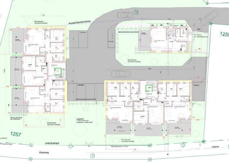
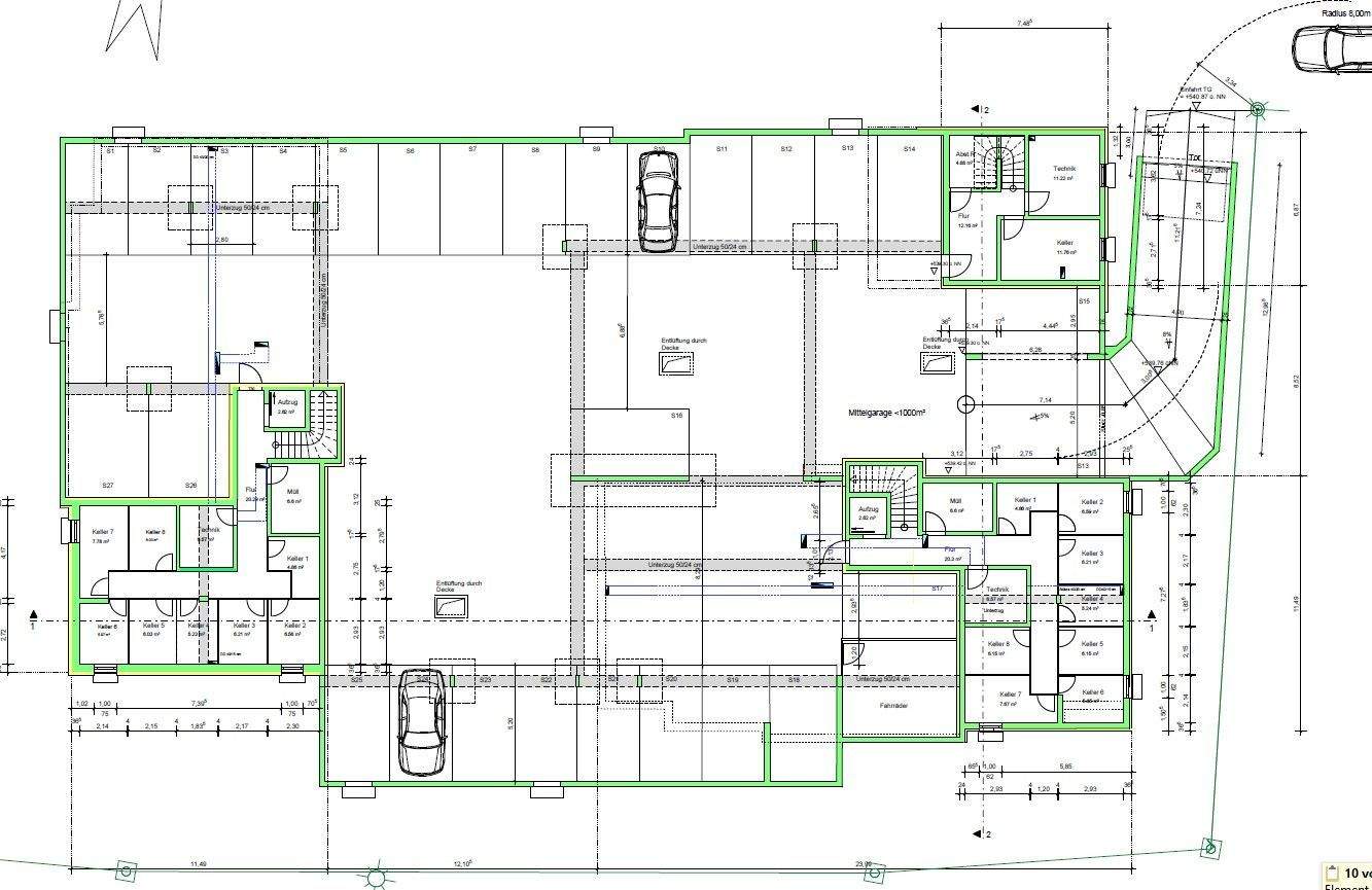
Objektdaten
Objektbeschreibung
Der Ammersee mit seiner herausragenden Lebens-qualität, die Möglichkeit der persönlichen Regeneration zu jeder Jahreszeit – ein Erlebnis, das viele Städter nur bei Wochenendausflügen genießen können. Hauptort dieser Region ist Herrsching mit seiner einzig-artigen Kombination aus natürlichem Umfeld und guter Anbindung an die Metropole München. Mit der S8 sind Sie in gut 45 Minuten in der City mit der Angebotsauswahl einer Millionenstadt und dem weltstädtischen Kulturangebot oder in einer weiteren halben Stunde am Flughafen. Andererseits bietet Herrsching selbst alles was man täglich braucht oder zumindest gerne um sich weiß; vom Bäcker bis zur Boutique, vom Arzt bis zur Klinik, von unterschiedlichsten Restaurants bis hin zur längsten See-Promenade Deutschlands wird den Herrschingern eine ausgezeichnete Infra-struktur geboten. Das neu erbaute Gymnasium ergänzt nun seit einigen Wochen das schulische Angebot zur Haupt- und Realschule. Die aktuellen Neubauprojekte werden z.Zt. für 11.000,--€/m² angebotenÄhnliche Angebote
So funktioniert es
- Alle neuen Anzeigen matchen wir kostenlos mit Deinen Suchparametern.
- Passende Angebote senden wir Dir in einer E-Mail pro Tag.
- Du kannst auch verschiedene Suchen anlegen und Dich jederzeit abmelden. Mehr dazu




