Objektdaten
Objektbeschreibung
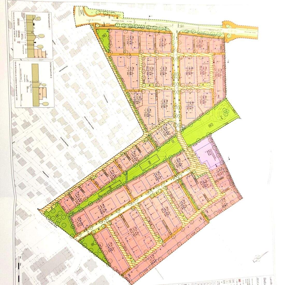
Die Erschließung im Neubaugebiet "Ob dem Korntaler Weg" ist fast abgeschlossen und mit dem Neubau kann sofort begonnen werden. Direkt in sonniger Feldrandlage bieten wir Ihnen dieses schöne Grundstück an. Es hat eine Größe von ca. 420 m² und hat einen fast quadratischen Zuschnitt. Es kann mit einem zweigeschossigen Wohngebäude bebaut werden. Die GRZ beträgt 035 und die GFZ 070. Als Dachform ist ein begrüntes Pult oder Flachdach mit 8° Dachneigung vorgesehen. Weitere Informationen wie den Bebauungsplan und den Texteil dazu können Sie gerne bei uns anforden. Weitere Angebote unter www.GARANT-IMMO.deSo funktioniert es
- Alle neuen Anzeigen matchen wir kostenlos mit Deinen Suchparametern.
- Passende Angebote senden wir Dir in einer E-Mail pro Tag.
- Du kannst auch verschiedene Suchen anlegen und Dich jederzeit abmelden. Mehr dazu




