Objektdaten
Objektbeschreibung
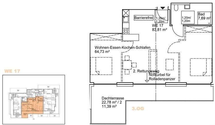
Wir bieten Ihnen eine lichtdurchflutete, optimal geschnittene 3-Zimmer-Penthousewohnung im 3. Obergeschoss an - inklusive einer großzügigen Terrasse von ca. 23 m².Beim Betreten der Wohnung gelangen Sie direkt in den weitläufigen, hellen Wohn- und Essbereich mit Zugang zur Terrasse. Linker Hand befinden sich das moderne Badezimmer sowie das zweite Schlafzimmer. Rechts schließt sich das Hauptschlafzimmer an. Beide Schlafzimmer verfügen über einen direkten Zugang zur großen, sonnigen Terrasse und bieten somit ein besonderes Wohlfühlambiente.Ein privater Kellerraum sowie weitere Gemeinschaftsräume im Untergeschoss runden dieses attraktive Gesamtangebot ab. Zusätzlich besteht die Möglichkeit, einen Tiefgaragenstellplatz für 35.000 € zu erwerben.Gerne erläutern wir Ihnen die vielseitigen Vorzüge dieser Immobilie in einem persönlichen Gespräch.Ähnliche Angebote
So funktioniert es
- Alle neuen Anzeigen matchen wir kostenlos mit Deinen Suchparametern.
- Passende Angebote senden wir Dir in einer E-Mail pro Tag.
- Du kannst auch verschiedene Suchen anlegen und Dich jederzeit abmelden. Mehr dazu




