Objektdaten
Objektbeschreibung
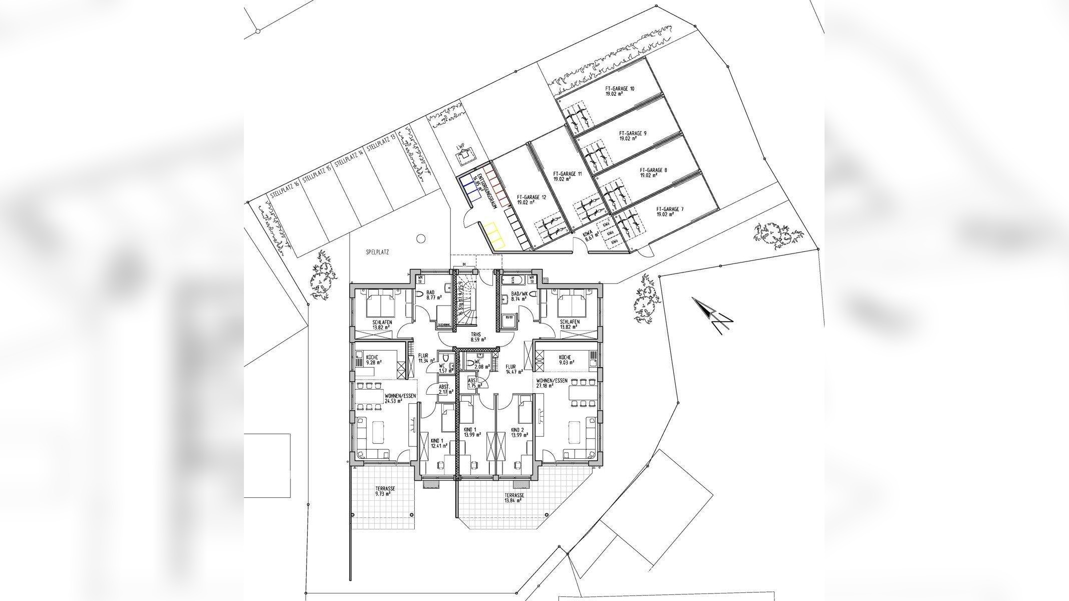
Hier sind sechs moderne Neubauwohnungen, im Herzen von Sechselberg entstanden. Das Gebäude ist in besonders energiesparender Bauweise erstellt und über eine Wärmepumpe beheizt.Eine Photovoltaikanlage reduziert die Stromkosten.Diese moderne 2-Zimmerwohnung befindet sich im Dachgeschoss und verfügt über einen großzügig geschnittenen Süd-West-Balkon mit Fernblick.So funktioniert es
- Alle neuen Anzeigen matchen wir kostenlos mit Deinen Suchparametern.
- Passende Angebote senden wir Dir in einer E-Mail pro Tag.
- Du kannst auch verschiedene Suchen anlegen und Dich jederzeit abmelden. Mehr dazu

