Objektdaten
Objektbeschreibung
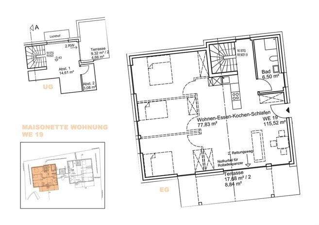
Wir präsentieren Ihnen eine gut geschnittene 4-Zimmer-Wohnung in ruhiger zweiter Reihe. Die Immobilie befindet sich im Erdgeschoss und bietet zusätzlich einen vielseitig nutzbaren Hobbyraum im Gartengeschoss. Die Räumlichkeiten gliedern sich wie folgt:Beim Betreten der Wohnung gelangen Sie in den großzügigen, offenen Wohn-, Ess- und Kochbereich mit direktem Zugang zur Terrasse. Von hier aus erschließen sich die drei Schlafzimmer - eines davon ebenfalls mit Terrassenzugang - sowie das helle Tageslichtbadezimmer.Über eine Innentreppe erreichen Sie das Untergeschoss, in dem sich ein ca. 15 m² großer Hobbyraum befindet. Auch dieser Raum verfügt über einen Zugang zu einer weiteren Terrasse und bietet flexible Nutzungsmöglichkeiten.Gemeinschaftsräume im Untergeschoss runden dieses attraktive Angebot ab. Zusätzlich besteht die Möglichkeit, einen Tiefgaragenstellplatz für 35.000 € zu erwerben.Gerne stellen wir Ihnen die vielfältigen Vorzüge dieser ansprechenden Immobilie in einem persönlichen Gespräch vor.Ähnliche Angebote
So funktioniert es
- Alle neuen Anzeigen matchen wir kostenlos mit Deinen Suchparametern.
- Passende Angebote senden wir Dir in einer E-Mail pro Tag.
- Du kannst auch verschiedene Suchen anlegen und Dich jederzeit abmelden. Mehr dazu




