Objektdaten
Objektbeschreibung
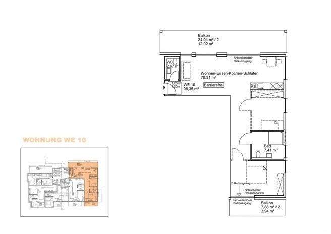
Wir präsentieren Ihnen eine hervorragend geschnittene 3-Zimmer-Wohnung im 1. Obergeschoss mit 2 Balkonen.Bereits im Eingangsbereich finden Sie auf der linken Seite das Gäste-WC. Geradeaus öffnet sich der großzügige, lichtdurchflutete Wohn- und Essbereich mit großer Fensterfront und direktem Zugang zum großzügigen Balkon. Von hier aus erreichen Sie alle weiteren Räume: das Kinderzimmer, das helle Tageslichtbad sowie das Schlafzimmer mit Zugang zum weiteren gemütlichen Balkon.Ein privater Kellerraum sowie weitere Gemeinschaftsräume im Untergeschoss runden dieses attraktive Gesamtangebot ab. Zusätzlich besteht die Möglichkeit, einen Tiefgaragenstellplatz für 35.000 € zu erwerben.Gerne stellen wir Ihnen die vielfältigen Möglichkeiten dieser Immobilie in einem persönlichen Gespräch näher vor.Ähnliche Angebote
So funktioniert es
- Alle neuen Anzeigen matchen wir kostenlos mit Deinen Suchparametern.
- Passende Angebote senden wir Dir in einer E-Mail pro Tag.
- Du kannst auch verschiedene Suchen anlegen und Dich jederzeit abmelden. Mehr dazu




