Bunker für Projektentwicklung (Wohnungen) im Harburger Phoenix-Viertel

Kaufpreis 790.000 €
Zimmer 32
Größe 680 m²
21073 Hamburg

Objektdaten

Veröffentlicht am: 20. Januar 2026
Energieausweis: Liegt bei der Besichtigung vor
  • Objektbeschreibung

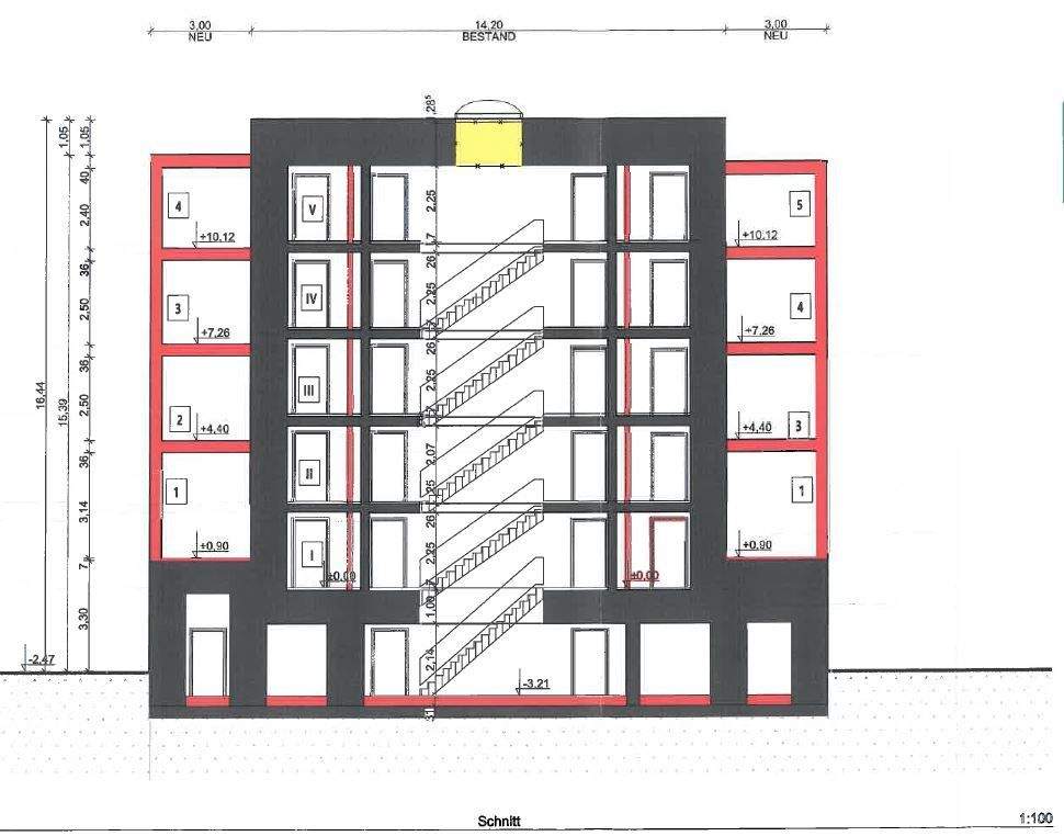
    Der Hochbunker ist ein ehemaliges Schutzbauwerk, das im Jahr 1942 erbaut wurde. Nach dem Krieg wurde der Bunker in den 1960er Jahren wieder aktiviert und an die damaligen Bedrohungssituationen angepasst. Heute befindet sich der Bunker im Privatbesitz und wird derzeit ausschließlich als Lager genutzt. Das Bauwerk ist trocken und wurde auf einer Grundfläche von 20,20 x 17,75 Metern errichtet. Es erstreckt sich über sechs Ebenen mit einer Gesamtfläche von etwa 855 m². Die Decken sind circa 1,40 Meter stark, die Wände etwa 1,10 Meter dick, und die Höhe des Bunkers beträgt rund 16,70 Meter. Ein funktionierendes Be- und Entlüftungssystem ist vorhanden.Der Bunker schließt straßenfrontlich an die Lasallestraße an und grenzt unmittelbar an Geschosswohnungsbau. Er verfügt über drei ebenerdige Eingänge sowie zwei Schleusen. Eine Nutzungsänderung zu Wohnungen wird von der Stadt begrüßt; eine entsprechende Entwurfsplanung für den Umbau inklusive Anbauten wie Balkonen und Aufzug liegt bereits vor. Für eine endgültige Genehmigung sowie eine mögliche Aufstockung sind weitere Abstimmungen mit dem Bauamt erforderlich.Im Untergeschoss befinden sich Technikräume, sowie Platz für mögliche Kellerräume für die Bewohner, Müll- und Fahrradräume. Darüber liegen noch fünf Geschosse, wobei die Böden und Decken im zukünftigen Wohnbereich angepasst werden müssen, um die erforderliche Raumhöhe zu erreichen (siehe Schnitt). Geplant sind vier Etagen mit z. B. jeweils vier Zwei-Zimmer-Wohnungen, insgesamt also 16 Wohneinheiten. Das Treppenhaus befindet sich im Zentrum des Bunkers; ein Aufzug könnte seitlich in einem Anbau ergänzt werden. Das Grundstück hinter dem Bunker kann als Kinderspielfläche genutzt werden.
    Nach oben scrollen