Erstbezug : Exklusiver Neubau im Zentrum mit Balkon, Fußbodenheizung und Parkett!

Warmmiete 758 €
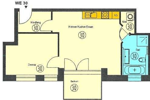
Zimmer 2
Größe 54 m²
09111 Chemnitz

Objektdaten

Veröffentlicht am: 22. Januar 2026
Frei ab: 1. April 2026
Nebenkosten: 120 €
Kaltmiete 638 €
Energieausweis: Liegt bei der Besichtigung vor
Neu

Über ähnliche Angebote direkt informiert werden

  • Objektbeschreibung

    Das imposante Neubauobjekt liegt im Zentrum von Chemnitz. Durchdachte Grundrisse zeichnen die 51 attraktiven 2- bis 4-Zimmer-Wohnungen aus, die teilweise zur Straße oder zum begrünten Hof ausgerichtet sind.

    Ähnliche Angebote

    So funktioniert es

    • Alle neuen Anzeigen matchen wir kostenlos mit Deinen Suchparametern.
    • Passende Angebote senden wir Dir in einer E-Mail pro Tag.
    • Du kannst auch verschiedene Suchen anlegen und Dich jederzeit abmelden. Mehr dazu
    Nach oben scrollen