Kaufpreis 290.000 €
Zimmer 1
28355 Bremen
Objektdaten
Veröffentlicht am: 24. Januar 2026
Frei ab: 20. Januar 2026
Danke! Bitte bestätige Deine E-Mail-Adresse – wir haben Dir soeben eine Mail geschickt.
Es gab ein Problem beim Absenden. Bitte versuche es erneut.
Bitte bestätige Deine E-Mail-Adresse, um Updates zu erhalten.
Objektbeschreibung
In rückwärtiger, sehr ruhiger Gartenlage befindet sich dieses Grundstück mit genehmigter Bauplanung (2011) für ein freistehendes Einfamilienhaus mit nachfolgenden Details:
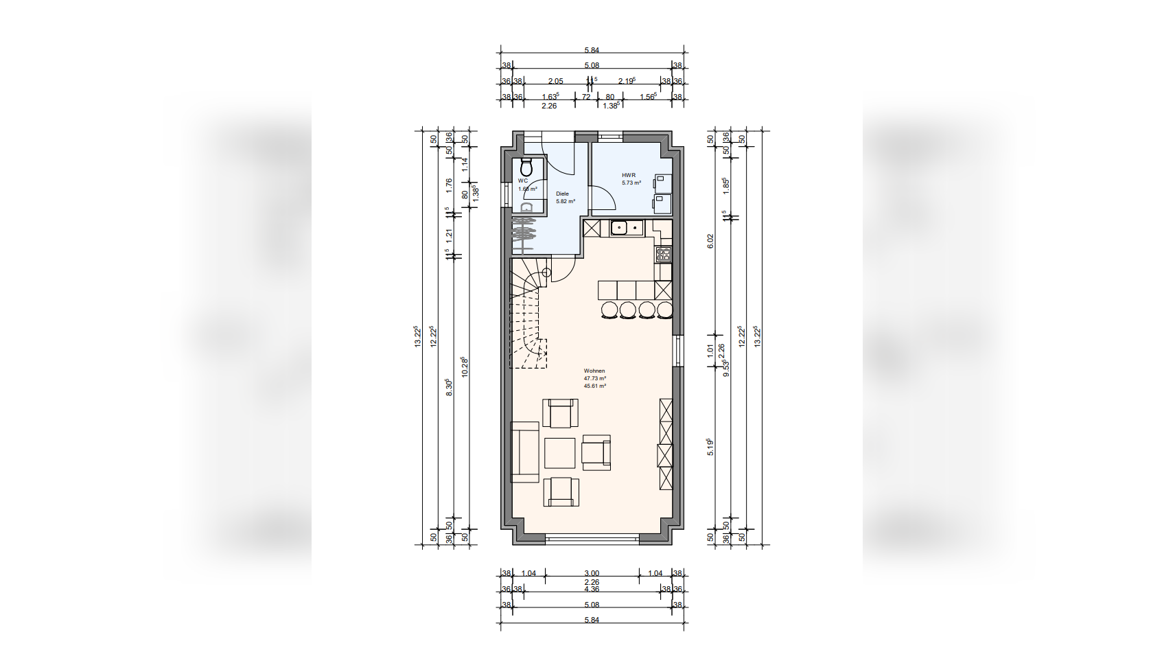
* EG: Diele, WC, HWR, 47 m² Wohn/Esszimmer = 61 m²
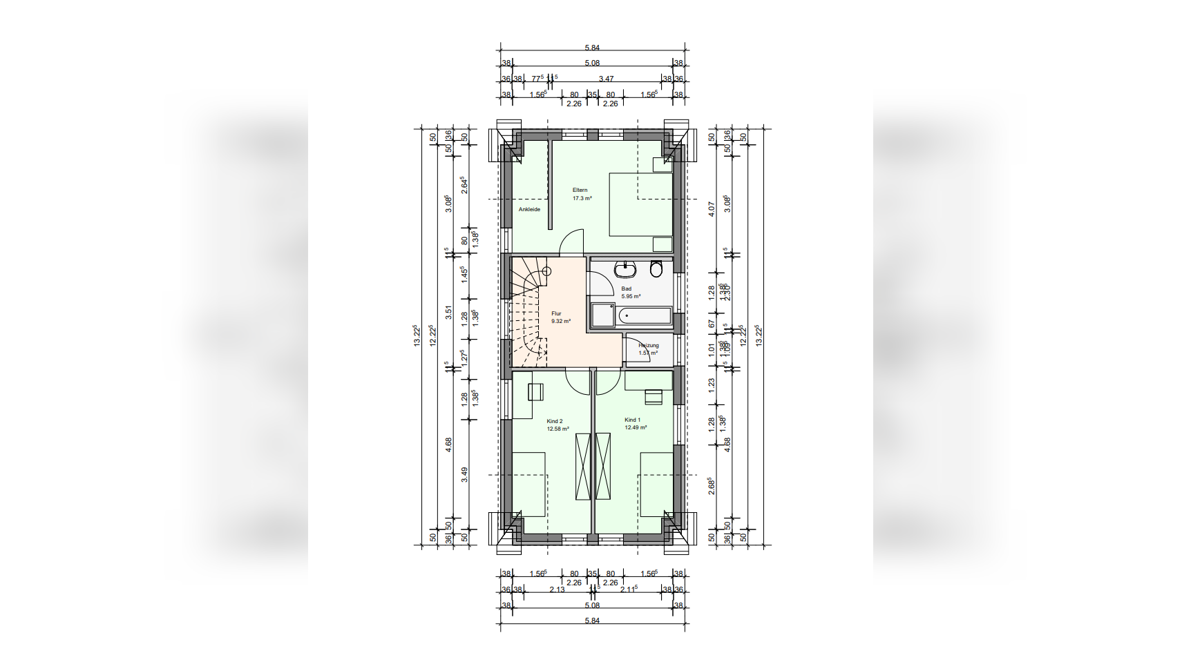
* OG: 3 Zimmer, Heizung, Badezimmer = 59 m²
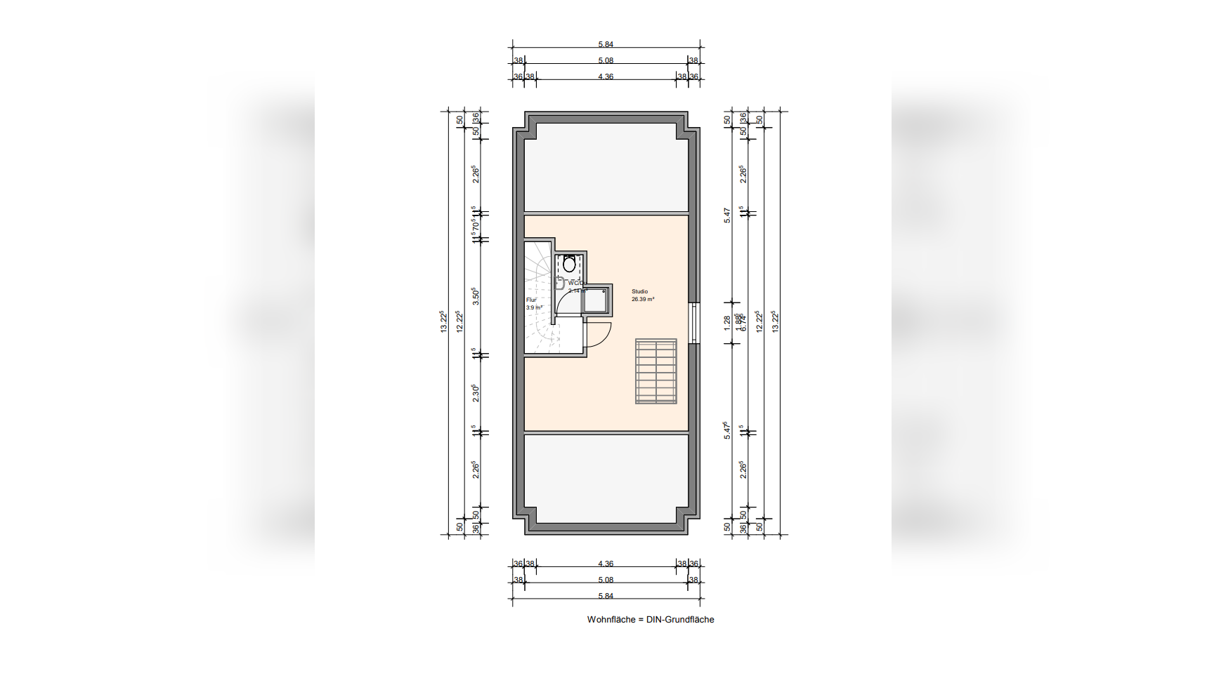
* DG: WC und 26,39 m² Dachstudio = 29 m²
Insgesamt stehen mit diesem Haus ca. 149 m² Wohnfläche zur Verfügung. Die Planung ist Bestandteil des Kaufobjektes aber für die Bauherren nicht bindend.
Gerne stehen wir Ihnen mit weiteren Auskünften zur Verfügung, auch bezüglich eines Bestandsgebäudes, welches aktuell auf dem vorderen Grundstück zum Verkauf steht.
So funktioniert es
- Alle neuen Anzeigen matchen wir kostenlos mit Deinen Suchparametern.
- Passende Angebote senden wir Dir in einer E-Mail pro Tag.
- Du kannst auch verschiedene Suchen anlegen und Dich jederzeit abmelden. Mehr dazu
Wir haben soeben eine E-Mail mit Deinem Suchauftrag an Dich geschickt. – Klicke in dieser Mail auf den Bestätigungslink und schon geht's los. Prüfe ggf. auch Deinen Spamordner.
Es gab ein Problem beim Absenden Deiner E-Mail-Adresse. Bitte versuche es erneut.
WARNUNG: Bitte bestätige Deine E-Mail-Adresse, um regelmäßige Updates zu erhalten.