Kompakte 48 qm in kleiner Hausgemeinschaft im Landauer Stadtviertel Horst zu verkaufen!

Kaufpreis 115.000 €
Zimmer 2
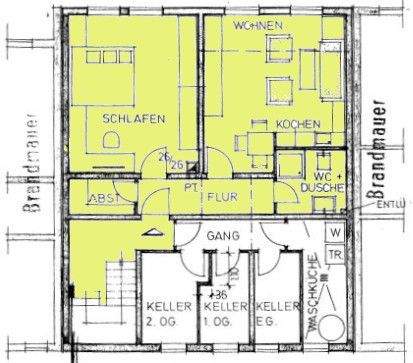
Größe 48 m²
76829 Landau in der Pfalz

Objektdaten

Veröffentlicht am: 25. Januar 2026
Baujahr: 1998
Energieausweis: Liegt bei der Besichtigung vor
  • Objektbeschreibung

    Aktuell ist die Wohnung seit 2021 für eine Kaltmiete von 450,00 Euro vermietet. Sie können sie als Kapitalanlage (Staffelmietvertrag) fortführen oder mittelfristig selbst nutzen. Sie suchen kein austauschbares Wohnobjekt, sondern eine Wohnung, die Sie nach Ihren eigenen Vorstellungen gestalten können? Dann wird Sie dieses Angebot interessieren.Die ca. 48 qm große Wohnung liegt im Souterrain eines kleinen Mehrfamilienhauses (Mehrspänner) aus dem Jahr 1971 mit nur insgesamt vier Parteien. Sie bietet den soliden Grundriss, den Sie brauchen, um Ihre eigenen Ideen umzusetzen - und genau das macht sie spannend.Das Wohnzimmer mit offener Küchenecke ist großzügig geschnitten und bildet den Mittelpunkt. Hier lässt sich ein gemütlicher Wohnbereich mit Essplatz einrichten. Sie haben die Freiheit, Küche und Wohnbereich nach Ihrem Geschmack zu modernisieren und so eine offene Wohlfühlatmosphäre zu schaffen.Das Schlafzimmer ist ruhig gelegen und überzeugt durch seine klare Form, die sich leicht möblieren lässt. Das Bad mit Badewanne ist funktional, doch auch hier gilt: Wer renovieren möchte, kann den gut nutzbaren Raum in eine kleine Wellnessoase verwandeln.Die Hausgemeinschaft ist überschaubar, Sie teilen sich das Gebäude mit nur wenigen Nachbarn. Für Ordnung und Pflege sorgen Hausverwaltung und Hausmeister. Praktische Extras wie Kellerraum und Abstellraum in der Wohnung stehen ebenfalls zur Verfügung. Für Ihr Auto sind kostenfreie Parkplätze ohne Zeitbeschränkung unmittellbar am Grundstück (Danziger Platz) mehr als ausreichend vorhanden.
    Nach oben scrollen