Kaufpreis 165.000 €
Zimmer 3
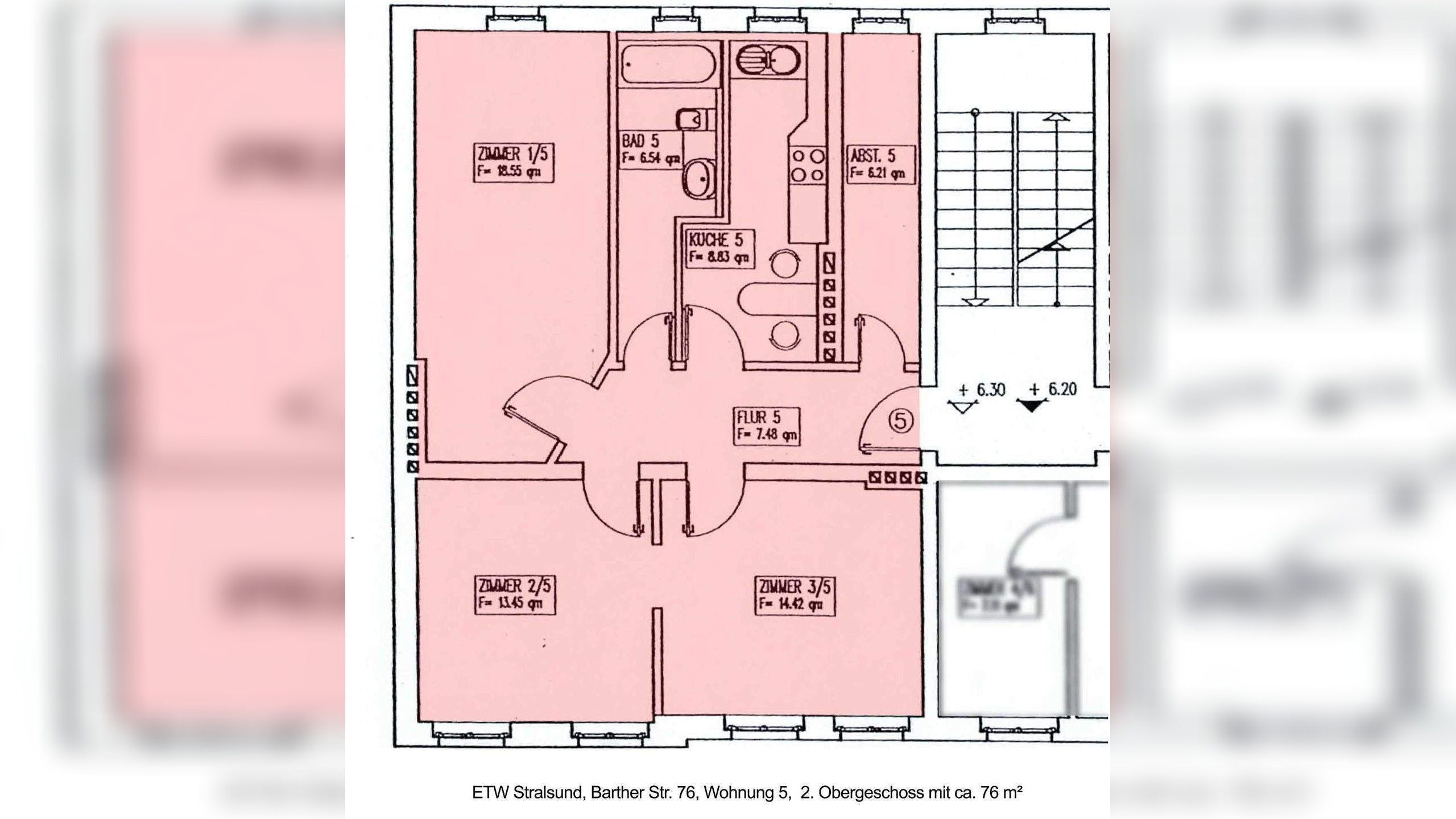
Größe 76 m²
18437 Stralsund
Objektdaten
Veröffentlicht am: 25. Januar 2026
Energieausweis: Liegt bei der Besichtigung vor
Danke! Bitte bestätige Deine E-Mail-Adresse – wir haben Dir soeben eine Mail geschickt.
Es gab ein Problem beim Absenden. Bitte versuche es erneut.
Bitte bestätige Deine E-Mail-Adresse, um Updates zu erhalten.
Objektbeschreibung
Objektart:- Eigentumswohnung (ETW)- leergezogen- 2. OG- kein Fahrstuhl- Parkplatz kann angemietet werdenWohnfläche:- ca. 75,51 m²Sonstiges:- Baujahr ca. 1920- Massivbau, Putzfassade ohne Dämmung- Dach mit Bitumenschweißbahnen- Holz- und Kunststofffenster- Kernsaniert 1996/1997- guter optischer und baulicher Zustand- Fußböden: Fliesen, Laminat- 3 Zimmer, Küche, Wannenbad, Flur- Gaszentralheizung Bj 2023- Abstellraum im Dachboden- TV/Internet via KabelanschlussHausgeld:- 490 EUR/MonatInstandhaltungsrücklage (IHR):- ca. 3.894 EUR Gesamtrücklage- ca. 400 EUR Einzelrücklage
So funktioniert es
- Alle neuen Anzeigen matchen wir kostenlos mit Deinen Suchparametern.
- Passende Angebote senden wir Dir in einer E-Mail pro Tag.
- Du kannst auch verschiedene Suchen anlegen und Dich jederzeit abmelden. Mehr dazu
Wir haben soeben eine E-Mail mit Deinem Suchauftrag an Dich geschickt. – Klicke in dieser Mail auf den Bestätigungslink und schon geht's los. Prüfe ggf. auch Deinen Spamordner.
Es gab ein Problem beim Absenden Deiner E-Mail-Adresse. Bitte versuche es erneut.
WARNUNG: Bitte bestätige Deine E-Mail-Adresse, um regelmäßige Updates zu erhalten.