Kaufpreis 34.900 €
Zimmer 1
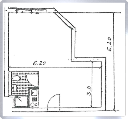
Größe 31 m²
09648 Mittweida
Objektdaten
Veröffentlicht am: 25. Januar 2026
Baujahr: 1995
Energieausweis: Liegt bei der Besichtigung vor
Danke! Bitte bestätige Deine E-Mail-Adresse – wir haben Dir soeben eine Mail geschickt.
Es gab ein Problem beim Absenden. Bitte versuche es erneut.
Bitte bestätige Deine E-Mail-Adresse, um Updates zu erhalten.
Objektbeschreibung
Das Objekt wurde vor einigen Jahren eigens für Studenten erbaut. Mittlerweile wohnen darin jedoch auch Singles, Azubis und natürlich Studenten.Die Wohnung ist derzeit leer stehend.Das Bad der Wohnung wurde komplett neu gestaltet. So wurde dieses komplett neu gefliest, eine neue tiefere Dusche installiert, ein hängendes WC installiert, ein neues HWB und eine Ablagefläche über dem Waschbecken geschaffen.Der Wasseranschluss für die Single-EBK im Eingangsbereich wurde in den Wohnraum verlegt. Somit besteht nun die Möglichkeit eine Küche von bis zu 1,92m Breite zu installieren. Die Nische im Eingangsbereich eignet sich hervorragend für einen Garderobenschrank. Der Verkäufer hat darüber hinaus eine Trockenbauwand im Wohnraum installiert. Damit lässi sich ein Schlafraum abtrennen. Diese Trockenbauwand kann jedoch problemlos wieder entfernt werden.Am Fenster ist eine Außenjalousie installiert.Im Haus befindet sich ein neuer moderner Waschsalon der Firma Miele, welcher gegen Gebühr genutzt werden kann.Vor Einzug eines neuen Mieter wären noch nachfolgende Arbeiten erforderlich:- Ausbau Trockenbauwand oder verputzen der Wand und Einbau einer Tür- neuer Bodenbelag im Wohnbereich- Installation einer Einbauküche inkl. Boiler- ggf. Installation eines GarderobenschrankesDie monatlichen SOLL-Mieteinnahmen belaufen sich auf 290,- Euro Kaltmiete zzgl. 110,- Euro NK-Vorauszahlung. Für den dazugehörigen KFZ-Stellplatz 40,- Euro.GESAMTMIETTEINNAHME NETTO: 330,- Euro/ Monat bzw. 3.960,- Euro / JahrEs besteht ein Verwaltungsvertrag. Die Hausgeldkosten belaufen sich gem. aktuellem Wirtschaftsplan auf 161,40 Euro monatlich. Darin enthalten sind bereits 31,46 Euro für die Instandhaltungsrücklage und 37,19 Euro nicht umlegbare Nebenkosten (Reparaturen, Verwaltervergütung, etc.).
So funktioniert es
- Alle neuen Anzeigen matchen wir kostenlos mit Deinen Suchparametern.
- Passende Angebote senden wir Dir in einer E-Mail pro Tag.
- Du kannst auch verschiedene Suchen anlegen und Dich jederzeit abmelden. Mehr dazu
Wir haben soeben eine E-Mail mit Deinem Suchauftrag an Dich geschickt. – Klicke in dieser Mail auf den Bestätigungslink und schon geht's los. Prüfe ggf. auch Deinen Spamordner.
Es gab ein Problem beim Absenden Deiner E-Mail-Adresse. Bitte versuche es erneut.
WARNUNG: Bitte bestätige Deine E-Mail-Adresse, um regelmäßige Updates zu erhalten.