Verwirklichen Sie Ihre Wohnwünsche mit einem Massivhaus von Kern-Haus!

Kaufpreis 389.900 €
Zimmer 4
Größe 133 m²
09496 Marienberg

Objektdaten

Veröffentlicht am: 27. Januar 2026
Baujahr: 2024
Energieausweis: Liegt bei der Besichtigung vor
Neu

Über ähnliche Angebote direkt informiert werden

  • Objektbeschreibung

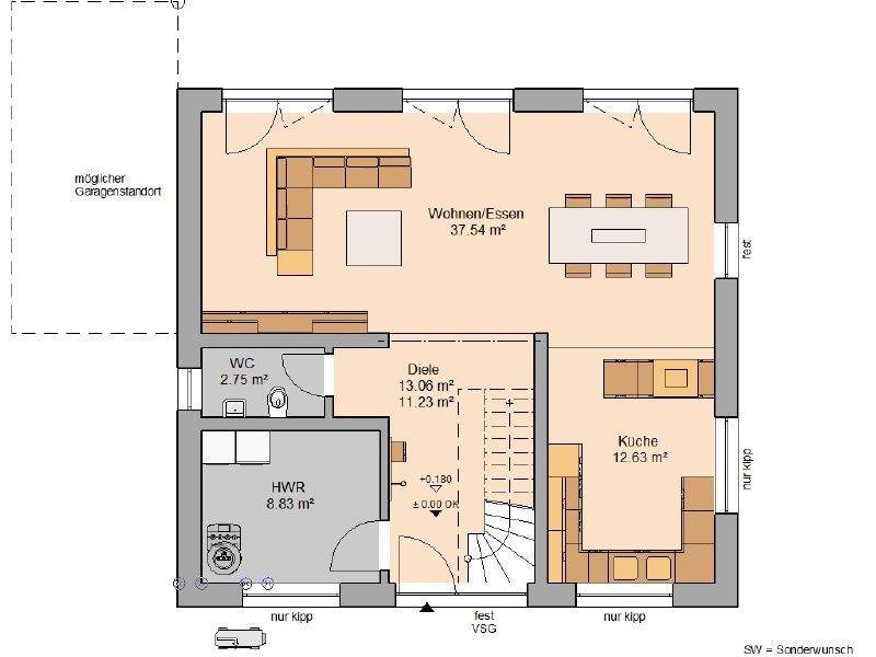
    Das Massivhaus Trend ist modern und zeitlos zugleich. Die Architektursprache des Familienhauses ist klassisch, kombiniert mit der modernen Grundrissgestaltung im Innenraum. Das Erdgeschoss folgt dem Trend der Offenheit. Es gleicht mit der Kombination aus Wohnen, Essen und Küche einem Loftcharakter. Im Erdgeschoss befinden sich außerdem der Hauswirtschaftsraum und ein Gäste-WC. Alle Räume sind von der Diele aus erreichbar.Das Dachgeschoss bietet viel Platz für die ganze Familie. Neben zwei Kinderzimmern, dem Elternschlafzimmer mit Ankleide und dem Flur befindet sich hier das großzügige Familienbad.Dieses Haus wird nach Ihren individuellen Wünschen geplant und ausgestattet!

    So funktioniert es

    • Alle neuen Anzeigen matchen wir kostenlos mit Deinen Suchparametern.
    • Passende Angebote senden wir Dir in einer E-Mail pro Tag.
    • Du kannst auch verschiedene Suchen anlegen und Dich jederzeit abmelden. Mehr dazu
    Nach oben scrollen