Kaufpreis 295.000 €
Zimmer 8
Größe 210 m²
91710 Gunzenhausen
Objektdaten
Veröffentlicht am: 29. Januar 2026
Energieausweis: Liegt bei der Besichtigung vor
Danke! Bitte bestätige Deine E-Mail-Adresse – wir haben Dir soeben eine Mail geschickt.
Es gab ein Problem beim Absenden. Bitte versuche es erneut.
Bitte bestätige Deine E-Mail-Adresse, um Updates zu erhalten.
Objektbeschreibung
renovierungsbedürftig, mit Keller, Garagen & Stellplatz
Zum Verkauf steht ein renovierungs-/ sanierungsbedürftiges Stadthaus mit viel Gestaltungsspielraum – ideal für Handwerker, Investoren oder alle, die sich den Traum vom eigenen Haus nach eigenen Vorstellungen erfüllen möchten.
Eckdaten:
Teilunterkellertes Haus
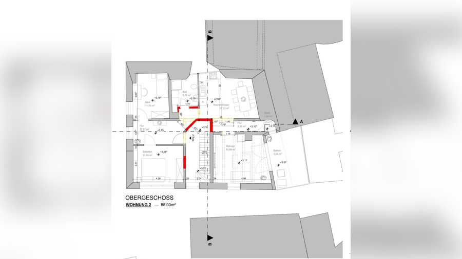
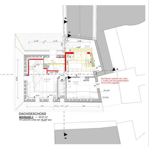
Erdgeschoss, 1. Obergeschoss und Dachgeschoss mit ca. 210 qm Wohnfläche. In drei einzelne Wohnungen teilbar!
2 Garagen mit separatem Abstellraum
Separater Keller unter der Garage
Zusätzlicher Außenstellplatz
Das Haus bietet eine solide Basis, benötigt jedoch Sanierungsmaßnahmen. Dafür bietet es viel Platz und Potenzial – z. B. für eine große Familie, ein Mehrgenerationenhaus oder Mehrfamilienhaus mit drei Wohnungen.
Lage: Ruhige und dennoch sehr zentrale Wohnlage
Steuervorteil durch Sanierungs-Afa (erhöhte Abschreibung) und Städtebauförderung der Stadt Gunzenhausen möglich.
Bei Interesse oder Fragen gerne melden! Besichtigungen nach Absprache möglich.
provisionsfreier Verkauf !
So funktioniert es
- Alle neuen Anzeigen matchen wir kostenlos mit Deinen Suchparametern.
- Passende Angebote senden wir Dir in einer E-Mail pro Tag.
- Du kannst auch verschiedene Suchen anlegen und Dich jederzeit abmelden. Mehr dazu
Wir haben soeben eine E-Mail mit Deinem Suchauftrag an Dich geschickt. – Klicke in dieser Mail auf den Bestätigungslink und schon geht's los. Prüfe ggf. auch Deinen Spamordner.
Es gab ein Problem beim Absenden Deiner E-Mail-Adresse. Bitte versuche es erneut.
WARNUNG: Bitte bestätige Deine E-Mail-Adresse, um regelmäßige Updates zu erhalten.