Objektdaten
Objektbeschreibung
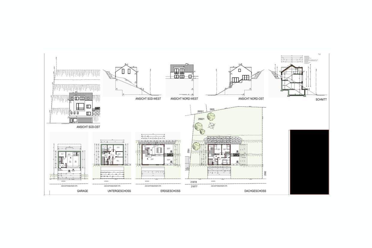
Dieses besondere Grundstück mit einer großzügigen Fläche von ca. 1.030 m² überzeugt durch seine markante Hanglage, die ideale Voraussetzungen für eine architektonisch anspruchsvolle und moderne Bebauung bietet. Durch eine geschickte Planung lässt sich die Topografie hervorragend nutzen - etwa für lichtdurchflutete Wohnräume, verschiedene Ebenen und großzügige Ausblicke.Eine bereits ausgearbeitete Bauvoranfrage inklusive detaillierter Pläne wird zur Verfügung gestellt und erleichtert die Umsetzung einer optimal auf das Grundstück abgestimmten Bebauung erheblich. Die vorhandenen Planungen zeigen eindrucksvoll, wie die Hanglage nicht nur problemlos gelöst, sondern in einen echten Mehrwert verwandelt werden kann.Dieses Grundstück richtet sich an Bauherren und Investoren, die das Besondere suchen und das Potenzial einer außergewöhnlichen Lage zu schätzen wissen.So funktioniert es
- Alle neuen Anzeigen matchen wir kostenlos mit Deinen Suchparametern.
- Passende Angebote senden wir Dir in einer E-Mail pro Tag.
- Du kannst auch verschiedene Suchen anlegen und Dich jederzeit abmelden. Mehr dazu




