Kaufpreis 339.100 €
Zimmer 2
Größe 58 m²
61169 Friedberg (Hessen)
Objektdaten
Veröffentlicht am: 2. Februar 2026
Energieausweis: Liegt bei der Besichtigung vor
Danke! Bitte bestätige Deine E-Mail-Adresse – wir haben Dir soeben eine Mail geschickt.
Es gab ein Problem beim Absenden. Bitte versuche es erneut.
Bitte bestätige Deine E-Mail-Adresse, um Updates zu erhalten.
Objektbeschreibung
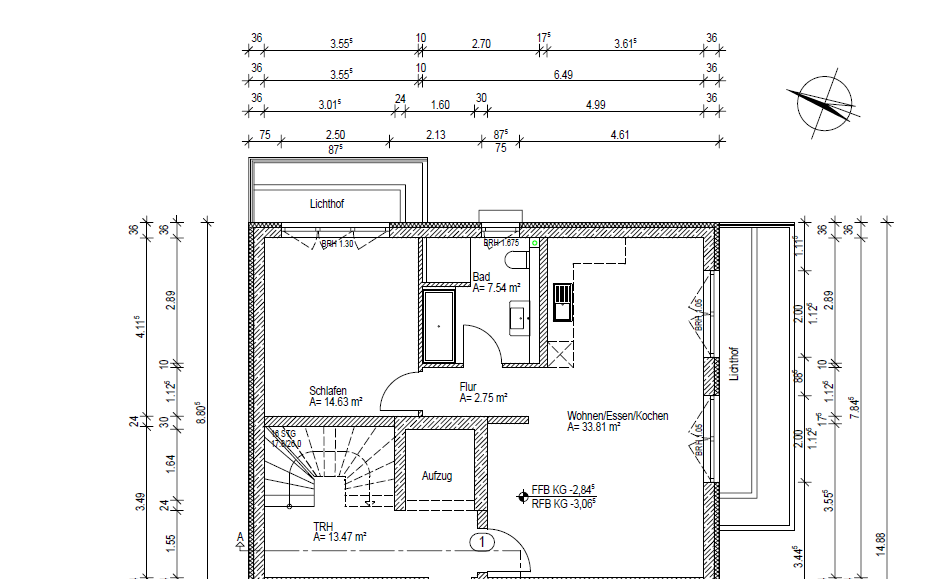
Diese attraktive Souterrainwohnung im hochwertigen Neubau präsentiert sich mit einem klar strukturierten Raumkonzept und einer eleganten, zeitgemäßen Ausstattung. Auf rund 59 m² erwartet Sie ein offen gestalteter Wohnraum, der Wohnen, Kochen und Essen harmonisch miteinander verbindet. Großzügige Fensterflächen sorgen für viel Tageslicht und schaffen eine freundliche Wohnatmosphäre.Der offene Küchen- und Essbereich bietet ideale Voraussetzungen, um Ihre persönliche Wunschküche zu integrieren und den Raum nach Ihren Vorstellungen zu gestalten. Der anschließende Wohnbereich eröffnet vielfältige Möglichkeiten für eine moderne Raumgestaltung und gemütliche Rückzugsorte.Das helle Schlafzimmer sorgt mit seiner ruhigen Lage für ein angenehmes Wohngefühl. Das hochwertig ausgestattete Badezimmer verfügt sowohl über eine Badewanne als auch eine separate Dusche - ideal für komfortables, entspanntes Wohnen im Alltag.Ein weiterer Vorteil des Neubaus ist der im Haus integrierte Aufzug, der einen bequemen Zugang zu allen Ebenen ermöglicht. Energetisch effiziente Bauweise und moderne Haustechnik sorgen zusätzlich für ein angenehmes und zukunftsorientiertes Wohnklima.
So funktioniert es
- Alle neuen Anzeigen matchen wir kostenlos mit Deinen Suchparametern.
- Passende Angebote senden wir Dir in einer E-Mail pro Tag.
- Du kannst auch verschiedene Suchen anlegen und Dich jederzeit abmelden. Mehr dazu
Wir haben soeben eine E-Mail mit Deinem Suchauftrag an Dich geschickt. – Klicke in dieser Mail auf den Bestätigungslink und schon geht's los. Prüfe ggf. auch Deinen Spamordner.
Es gab ein Problem beim Absenden Deiner E-Mail-Adresse. Bitte versuche es erneut.
WARNUNG: Bitte bestätige Deine E-Mail-Adresse, um regelmäßige Updates zu erhalten.