Exklusive Ausbaufläche im Dachgeschoss mit genehmigter Dachterrasse in Kieler Bestlage!

Kaufpreis 199.000 €
Zimmer 4
Größe 131 m²
24105 Kiel

Objektdaten

Veröffentlicht am: 6. Februar 2026
Baujahr: 1908
Energieausweis: Liegt bei der Besichtigung vor
  • Objektbeschreibung

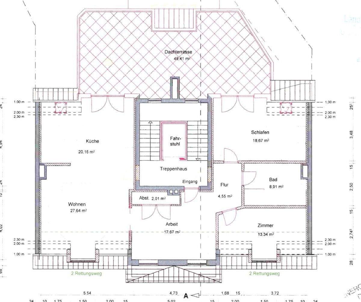
    Diese exklusive Dachgeschossfläche befindet sich in einem gepflegten Mehrfamilienhauses aus dem Baujahr 1908 mit insgesamt neun Wohneinheiten. Das Gebäude wurde in massiver Bauweise errichtet und steht unter Denkmalschutz - ein architektonisches Juwel mit Geschichte und Charakter. Die Lage in einer ruhigen Seitenstraße bietet zugleich eine hervorragende Anbindung an das Stadtzentrum von Kiel. Bei der angebotenen Einheit handelt es sich um eine Dachgeschossfläche mit einer potenziellen Wohnfläche von rund 137?m². Der aktuelle Ausbauzustand der Dachgeschosswohnung ist nicht genehmigt und muss gegebenenfalls zurückgebaut werden. Eine vollumfängliche Baugenehmigung für den geplanten Ausbau in eine großzügige 4-Zimmer-Wohnung inklusive einer rund 50?m² großen Dachterrasse liegt jedoch bereits vor. Damit bietet sich die seltene Möglichkeit, ein exklusives Wohnerlebnis über den Dächern der Stadt nach eigenen Vorstellungen zu verwirklichen. Die geplante Dachterrasse - aktuell noch nicht baulich vorbereitet - kann im Rahmen des genehmigten Ausbaus errichtet werden und eröffnet spektakuläre Ausblicke über Kiel. Ein echtes Highlight im urbanen Raum, das lange Sommerabende, gesellige Zusammenkünfte oder entspannte Momente im Freien möglich macht. Vorgesehen ist ein großzügiger, offen gestalteter Wohn- und Essbereich mit moderner Raumaufteilung sowie drei weitere Zimmer, die flexibel nutzbar sind - ob als Schlaf-, Kinderzimmer oder Homeoffice. Zahlreiche Fenster- und Dachflächenöffnungen sorgen im späteren Ausbau für ein helles, einladendes Wohngefühl. Die Ausstattung kann individuell nach persönlichen Ansprüchen gewählt werden. Ein zusätzlicher Pluspunkt: Für das Gebäude liegt auch eine genehmigte Baugenehmigung für den Einbau eines Aufzugs vor. Der entsprechende Beschluss der Eigentümergemeinschaft steht noch aus, eröffnet aber langfristig die Option eines barrierearmen Zugangs - ein bedeutender Komfortvorteil, auch mit Blick auf die Zukunft.
    Nach oben scrollen