Objektdaten
Objektbeschreibung
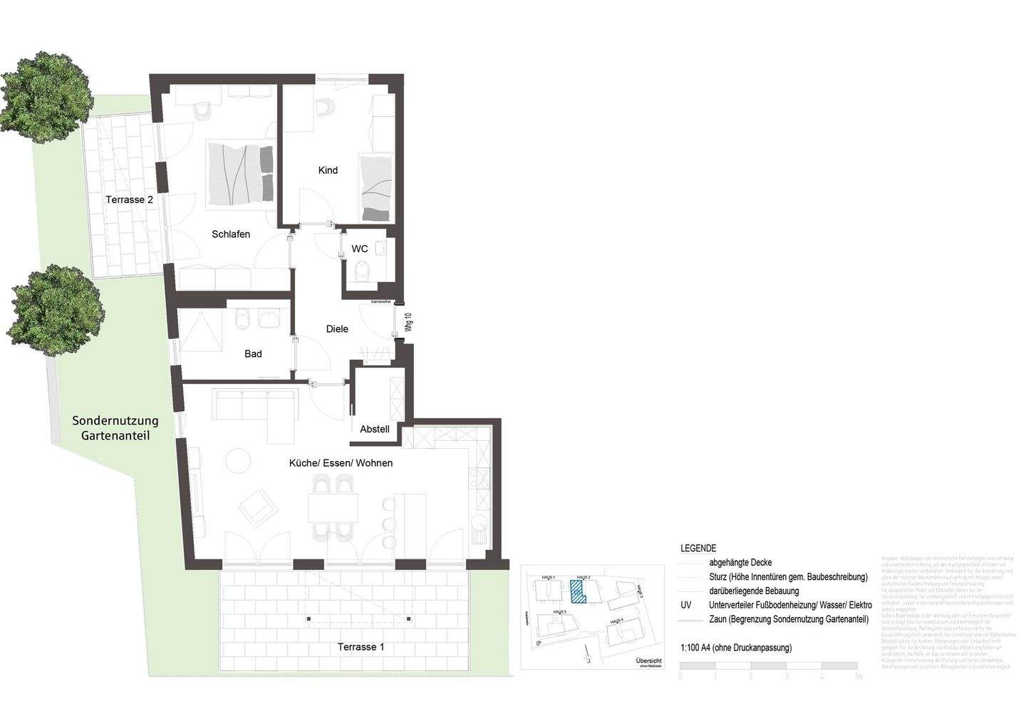
Eine gelungene Symbiose aus Urbanität und Gemütlichkeit - Herzlich Willkommen in Forstenried!Inmitten von Forstenried entstehen derzeit fünf stilvolle Mehrfamilienhäuser, die sich allesamt im eleganten Villenstil präsentieren und ein hohes Maß an Exklusivität ausstrahlen werden. Die Baukörper wurden auf dem ca. 3.222 m² großen Grundstück gekonnt platziert, so fügt sich das Gesamtensemble harmonisch in die Umgebung ein. Neben dem hohen Wohnkomfort ist vor allem das energieeffiziente Gesamtkonzept zu erwähnen, das maßgeblich zum Nachhaltigkeitsgedanken beiträgt.AUFTEILUNG l GRUNDRISSE: .Ca. 3.222 m² großes Grundstück.Bau von 38 Wohnungen in 5 Gebäuden.1- bis 4-Zimmer-WohnungenOBJEKTDETAILS:.Errichtung der Gebäude & der Heizungsanlage nach KfW 55 Standard.Heizung: Gas-Brennwert-Therme & Gas-Block-Heiz-Kraftwerk.Aufzug vom Untergeschoss bis in alle weiteren Etagen.Repräsentative Eingangsbereiche .38 PKW-Stellplätze in der Tiefgarage.Duplex-Stellplatz je 28.000 € l Tiefgaragenstellplatz je 33.000 €.Ansprechend gestaltete Außenanlage mit BepflanzungWeitere Detailinformationen, die ausführliche Baubeschreibung und eine Übersicht der weiteren verfügbaren Einheiten erhalten Sie gerne auf Anfrage. Bitte wenden Sie sich dazu an die zuständige Objektbetreuerin, Frau Sara Harms.Ähnliche Angebote
So funktioniert es
- Alle neuen Anzeigen matchen wir kostenlos mit Deinen Suchparametern.
- Passende Angebote senden wir Dir in einer E-Mail pro Tag.
- Du kannst auch verschiedene Suchen anlegen und Dich jederzeit abmelden. Mehr dazu




