Objektdaten
Objektbeschreibung
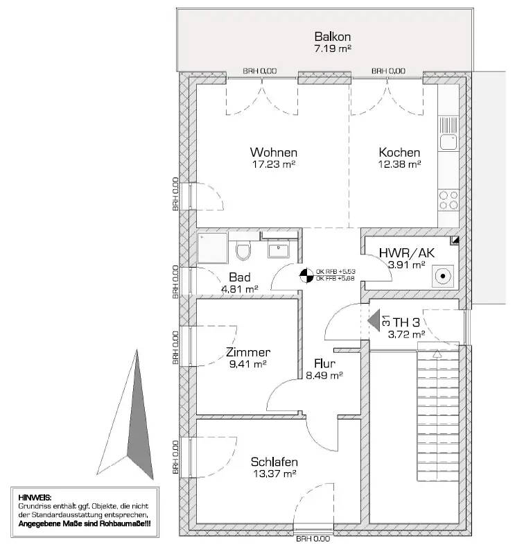
Diese niedliche 3-Zimmer-Wohnung verfügt über ein Hauptbadezimmer, welches mit einer Badewanne ausgestattet ist, und ein weiteres separates WC. Die separate Küche trennt die Schlaf- und Wohnbereiche klar voneinander ab und verhindert somit die Verteilung von sämtlichen Kochgerüchen in der gesamten Wohnung.Ihre zukünftige Loggia ist sehr geräumig und schafft so ausreichend Platz für gemütliche Stunden an der frischen Luft.Ihr eigener Mieterkeller stellt Ihnen zusätzlichen Stauraum für Ihre persönlichen Gegenstände zur Verfügung.Die Wohnanlage Eisenacher Str. und Stralsunder Ring wird derzeit modernisiert, um die Wohnqualität und den Komfort für Sienachhaltig zu verbessern. Ziel ist es, sowohl den energetischen Standard des Gebäudes zu erhöhen, die Heizkosten zu senken und die Grundrisse zu optimieren. Nach Abschluss der Arbeiten erfolgt eine Umlage auf alle Mieter /Mieterinnen in Höhe von 2,00 €/m² monatlich.Interesse geweckt? Melden Sie sich noch heute bei uns.Ähnliche Angebote
So funktioniert es
- Alle neuen Anzeigen matchen wir kostenlos mit Deinen Suchparametern.
- Passende Angebote senden wir Dir in einer E-Mail pro Tag.
- Du kannst auch verschiedene Suchen anlegen und Dich jederzeit abmelden. Mehr dazu





