Kaufpreis 239.000 €
Zimmer 2
Größe 74 m²
32584 Löhne
Objektdaten
Veröffentlicht am: 20. Februar 2026
Energieausweis: Liegt bei der Besichtigung vor
Danke! Bitte bestätige Deine E-Mail-Adresse – wir haben Dir soeben eine Mail geschickt.
Es gab ein Problem beim Absenden. Bitte versuche es erneut.
Bitte bestätige Deine E-Mail-Adresse, um Updates zu erhalten.
Objektbeschreibung
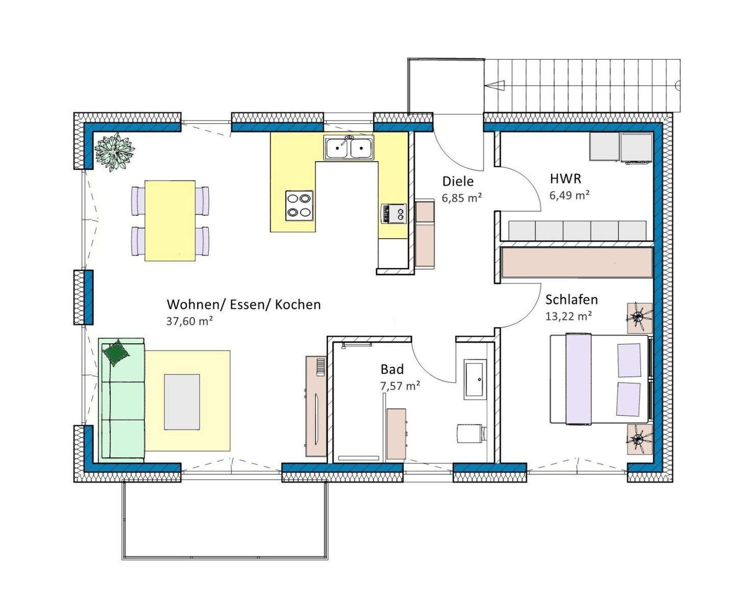
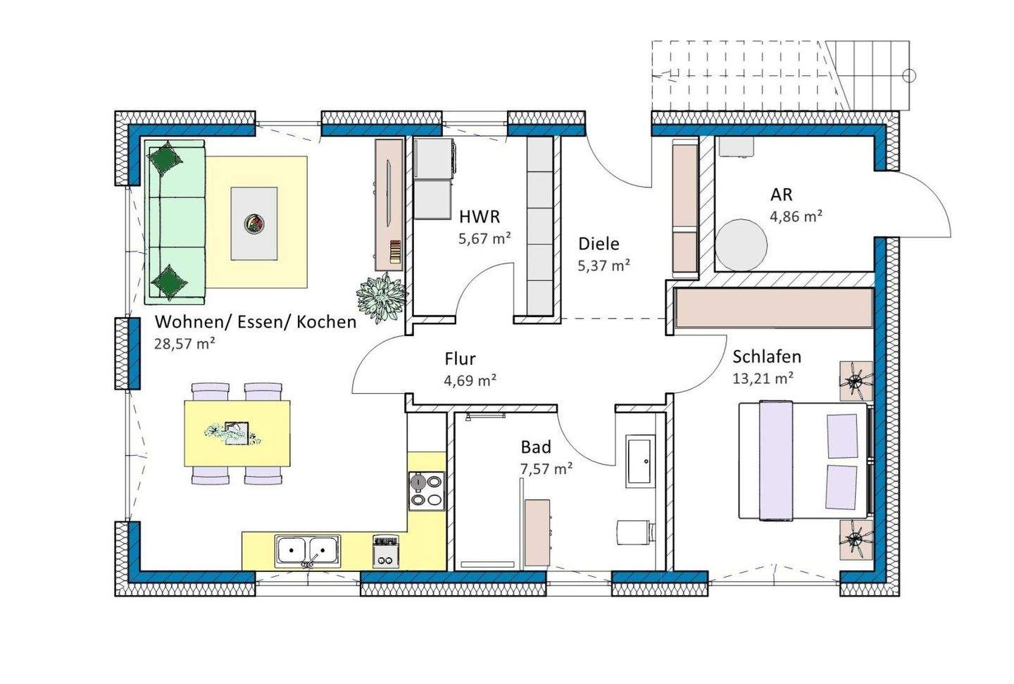
Wir bauen in absolut zentraler Lage von Löhne ein modern gestaltetes Wohnhaus mit 2 Eigentumswohnungen. Jede Wohnung hat einen separaten, eigenen Zugang. Die obere Wohnung ist über eine Außentreppe erreichbar. Die Wohnbereiche sowie die Terrasse bzw. der Balkon befinden sich in Süd-Westlage, so dass die Räume den ganzen Tag lichtdurchflutet sind und so ein angenehmes, helles Wohnklima entsteht.Die Zweizimmerwohnungen zeichnen sich durch sinnvollgeschnittene Grundrisse aus, so dass die Räume optimal genutzt werden können.Die untere Wohnung ist zudem barrierefrei und kann auf Wunsch auch behindertengerecht gestaltet werden.Die großzügig gestalteten Bäder mit bodengleicher Dusche können individuell, modern (nach Ihren Wünschen) gefliest werden und so zu einer kleinen Wellnessoase werden. Da sämtliche Wohnräume mit bodentiefen Fensterelementen ausgestattet sind, wirken die Räume großzügig und freundlich. Alle Fenster erhalten selbstverständlich elektrische betätigte Rollläden.Die Schlafzimmer bieten Stellflächen für große Kleiderschränke und zusätzlicher Kommoden.Die Hauswirtschaftsräume sind für die Aufstellung von Waschmaschine und Trockner vorgesehen und bieten genügend Abstellraum für die vielen kleinen Dinge. Außerdem besitzen diese Räume ein Fenster, so dass jederzeit Tageslicht zur Verfügung steht und eine gute Belüftung gewährleistet ist.Als Heizung wird eine Luft-Wasser-Wärmepumpe installiert. Die Wohnräume erhalten eine einzelraumgesteuerte Fußbodenheizung.Für die Versorgungseinrichtungen wie Heizung, Wasser -und Stromanschluss, Telefon- und Glasfaseranschluss besteht ein separater, gemeinsamer Hausanschlussraum.Energetisch wird das Gebäude gemäß der Richtlinien nach KfW 55 erstellt.Stellplätze können für 4.500 Euro erworben werden, falls gewünscht mit Carport 10.500 Euro.Die Erbpacht beträgt 78 Euro monatlich je Wohnung. Alle weiteren Informationen in einem persönlichen Gespräch.Wohnung Erdgeschoss 70 qm 249.000 EuroWohnung Obergeschoss 74 qm 239.000 EuroGrundstück 482 qm
So funktioniert es
- Alle neuen Anzeigen matchen wir kostenlos mit Deinen Suchparametern.
- Passende Angebote senden wir Dir in einer E-Mail pro Tag.
- Du kannst auch verschiedene Suchen anlegen und Dich jederzeit abmelden. Mehr dazu
Wir haben soeben eine E-Mail mit Deinem Suchauftrag an Dich geschickt. – Klicke in dieser Mail auf den Bestätigungslink und schon geht's los. Prüfe ggf. auch Deinen Spamordner.
Es gab ein Problem beim Absenden Deiner E-Mail-Adresse. Bitte versuche es erneut.
WARNUNG: Bitte bestätige Deine E-Mail-Adresse, um regelmäßige Updates zu erhalten.