Objektdaten
Objektbeschreibung
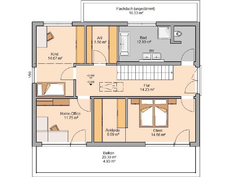
Offenheit, Helligkeit und viel Licht: Das bietet das Architektenhaus Elea - vor allem im Wohn- und Essbereich, das geprägt ist durch eine offene Raumstruktur und viele bodentiefe Fensterelemente. Komplettiert wird das Erdgeschoss durch ein Duschbad und einen fast 20 Quadratmeter großen Hauswirtschaftsraum. Über eine moderne Betontreppe erreichen Sie das Dachgeschoss. Dieses bietet neben einem Familienbad, einem Abstellraum und einem Kinderzimmer ein Home-Office sowie ein Elternschlafzimmer mit Ankleide. Home-Office und Elternbereich verfügen zudem über Balkonzugang. Der Balkon umfasst fast 20 Quadratmeter und erstreckt sich über die gesamte Hausbreite zum Garten hin.Dieses Haus wird nach Ihren individuellen Wünschen geplant und ausgestattet!Ähnliche Angebote
So funktioniert es
- Alle neuen Anzeigen matchen wir kostenlos mit Deinen Suchparametern.
- Passende Angebote senden wir Dir in einer E-Mail pro Tag.
- Du kannst auch verschiedene Suchen anlegen und Dich jederzeit abmelden. Mehr dazu




