Ein modernes Haus mit zeitlosem Charme und großem Garten. Auf zwei Wohnebenen verteilt bietet es viel Licht durch große Fenster und Raum für das Leben Ihrer Familie.
Objektdaten
Objektbeschreibung
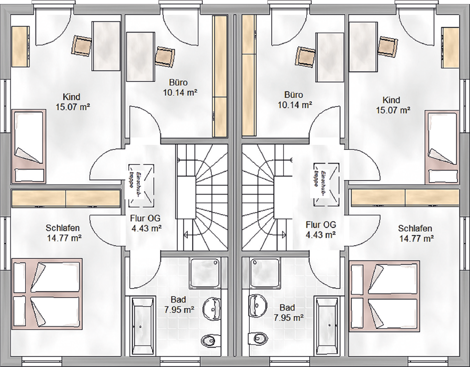
Modernes Wohnambiente trifft auf zeitlose Eleganz und das auf zwei Wohnebenen. Dabei sorgen großen Fenster für viel Licht und Atmosphäre. Im Erdgeschoss befindet sich ein geräumiges Wohn-Ess-Zimmer mit einem herrlichen Blick in Ihren Garten und einer Küche, die zum gemeinsamen Kochen einlädt. Der Hauswirtschaftsraum und das Gäste WC runden das Raumangebot auf dieser Ebene ab. Das zweite Geschoss bietet Platz für die Kinder, die Eltern, zum Entspannen, zum Arbeiten oder auch fürs Hobby. Die Grundrisse sind noch variabel und können an Ihre Wünsche und Bedürfnisse angepasst werden.So funktioniert es
- Alle neuen Anzeigen matchen wir kostenlos mit Deinen Suchparametern.
- Passende Angebote senden wir Dir in einer E-Mail pro Tag.
- Du kannst auch verschiedene Suchen anlegen und Dich jederzeit abmelden. Mehr dazu




