Legen Sie jetzt den Grundstein für Ihre Zukunft!

Kaufpreis 341.900 €
Zimmer 5
Größe 143 m²
54673 Neuerburg

Objektdaten

Veröffentlicht am: 22. Februar 2026
Energieausweis: Liegt bei der Besichtigung vor
Neu

Über ähnliche Angebote direkt informiert werden

  • Objektbeschreibung

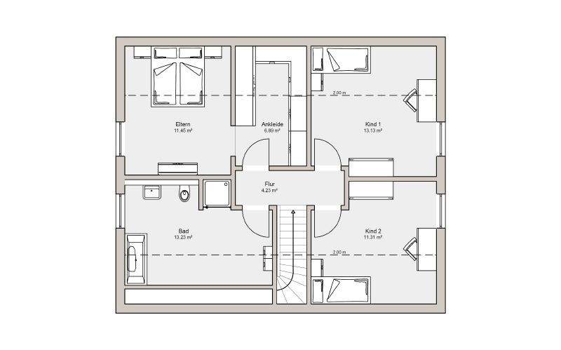
    Architektenhaus Anto präsentiert sich vielfältig auf zwei Etagen mit einem innovativen Grundriss, der Wünsche wahr werden lässt. Im Erdgeschoss betreten Sie das Haus durch eine geräumige Diele, die offen in die Küche übergeht. Die Küche wird zum Mittelpunkt des Wohnbereiches. Direkt daneben befindet sich der Esstisch, wo man gemeinsam isst und Zeit verbringt. Der Wohnbereich mit Couch und TV schließt daran an und lädt zum Entspannen ein. Neben der Küche führt eine Tür in das praktische Home-Office. Ebenfalls im Erdgeschoss sind ein Hauswirtschaftsraum und ein Gäste-WC vorhanden.Abgerundet wird das Satteldachhaus im Dachgeschoss mit einem Elternschlafzimmer mit einer Ankleide, zwei Kinderzimmer und einem geräumigen Familienbad.Dieses Haus wird nach Ihren individuellen Wünschen geplant und ausgestattet!

    So funktioniert es

    • Alle neuen Anzeigen matchen wir kostenlos mit Deinen Suchparametern.
    • Passende Angebote senden wir Dir in einer E-Mail pro Tag.
    • Du kannst auch verschiedene Suchen anlegen und Dich jederzeit abmelden. Mehr dazu
    Nach oben scrollen