Objektdaten
Objektbeschreibung
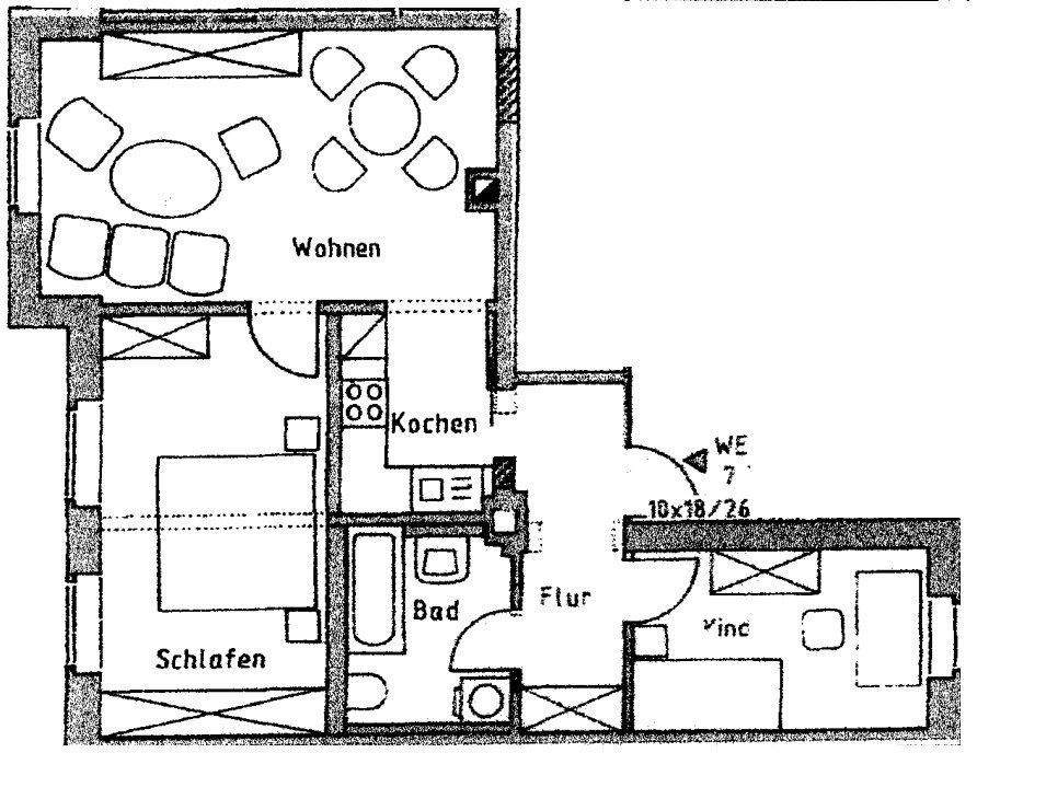
Das Objekt wurde um 1900 erbaut und 1999 umfassend saniert. Es steht unter Denkmalschutz.Das Ensemble, in dem das Haus sich befindet, wird von der Denkmalbehörde als "einheitliche Gruppe von historisierenden und stadtbildprägenden Klinkerbauten" bezeichnet. Ein repräsentativer Mittelerker ziert die Fassade, geschmückt mit zahlreichen Putten und Ornamenten.Die Gebäude verlaufen von Südwesten nach Nordosten.Das Haus steht an der Straße, welche zum Bahnhof hin in eine Sackgasse führt.Der rückwärtige, nicht befahrbare Teil des Grundstückes ist begrünt und von allen Bewohnern nutzbar. Parkmöglichkeiten befinden sich in der näheren Umgebung.Ähnliche Angebote
So funktioniert es
- Alle neuen Anzeigen matchen wir kostenlos mit Deinen Suchparametern.
- Passende Angebote senden wir Dir in einer E-Mail pro Tag.
- Du kannst auch verschiedene Suchen anlegen und Dich jederzeit abmelden. Mehr dazu




