Kaufpreis 195.000 €
Zimmer 4
Größe 103 m²
25836 Osterhever
Objektdaten
Veröffentlicht am: 23. Februar 2026
Energieausweis: Liegt bei der Besichtigung vor
Danke! Bitte bestätige Deine E-Mail-Adresse – wir haben Dir soeben eine Mail geschickt.
Es gab ein Problem beim Absenden. Bitte versuche es erneut.
Bitte bestätige Deine E-Mail-Adresse, um Updates zu erhalten.
Objektbeschreibung
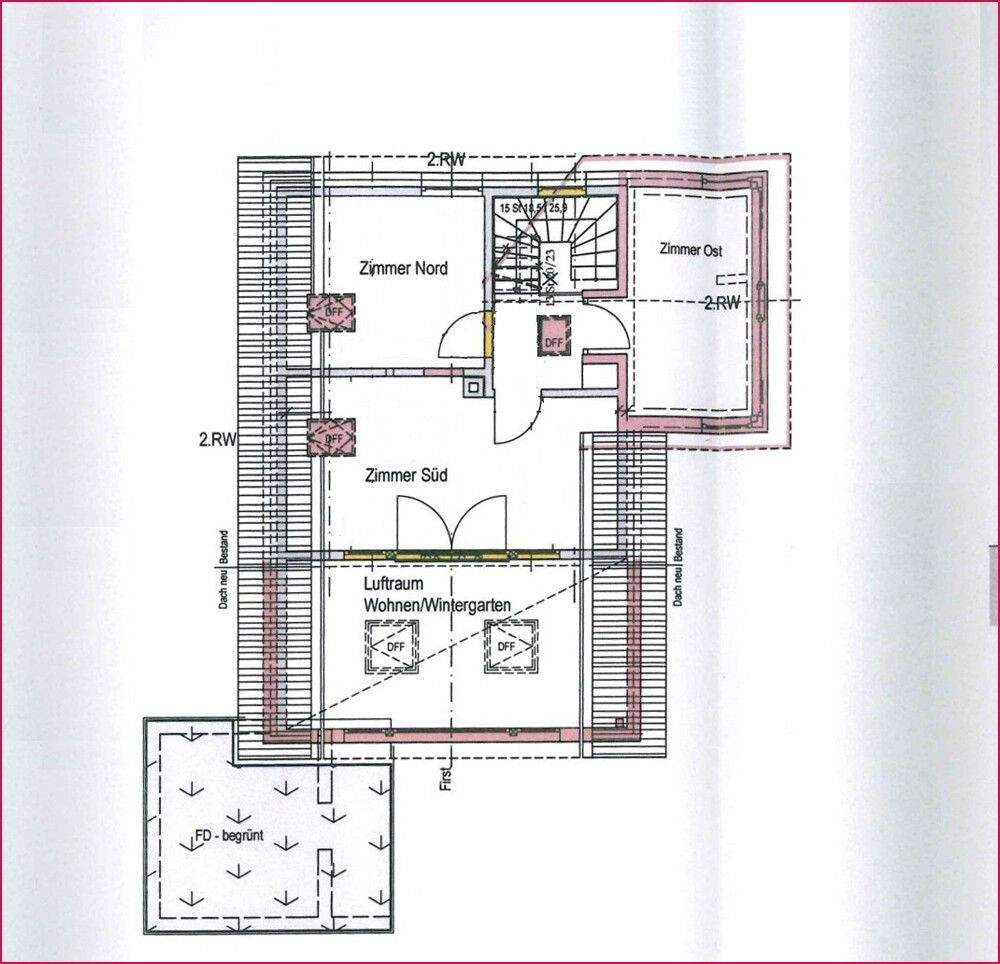
In idyllischer Außenbereichslage, eingebettet in die weite Eiderstedter Marschlandschaft, bietet dieses entkernte Wohnhaus auf ca. 565 m² Grundstück eine seltene Gelegenheit für Bauherren mit Vision. Das ursprünglich ca. 1952 in Massivbauweise errichtete Haus wurde bereits umfassend vorbereitet, sodass mit der Umsetzung unmittelbar begonnen werden kann. Eine Baugenehmigung inklusive genehmigter Erweiterungsbauten liegt vor - ein echter Vorteil und eine Besonderheit im Außenbereich.Geplant ist ein großzügiger, offener Wohn- und Essbereich mit offener Küche und bodentiefen Fenstern zur Terrasse, die den Blick in die Natur freigeben. Im Dachgeschoss sind drei Zimmer mit großen Giebelfenstern vorgesehen, auch wäre es möglich im Dachgeschoss ein weiteres Duschbad einzubauen. Ein separater Anbau für die Haustechnik sowie eine vorhandene vollbiologische Kläranlage runden das Konzept ab.Ein Objekt mit Seltenheitswert für alle, die ohne lange Vorlaufzeit starten und ihr individuelles Zuhause in einzigartiger Lage realisieren möchten. Weitere Details und Unterlagen erhalten Sie gern im vollständigen Exposé.Ein Energieausweis ist bei dieser Immobilie nicht verpflichtend.
So funktioniert es
- Alle neuen Anzeigen matchen wir kostenlos mit Deinen Suchparametern.
- Passende Angebote senden wir Dir in einer E-Mail pro Tag.
- Du kannst auch verschiedene Suchen anlegen und Dich jederzeit abmelden. Mehr dazu
Wir haben soeben eine E-Mail mit Deinem Suchauftrag an Dich geschickt. – Klicke in dieser Mail auf den Bestätigungslink und schon geht's los. Prüfe ggf. auch Deinen Spamordner.
Es gab ein Problem beim Absenden Deiner E-Mail-Adresse. Bitte versuche es erneut.
WARNUNG: Bitte bestätige Deine E-Mail-Adresse, um regelmäßige Updates zu erhalten.