Kaufpreis 489.000 €
Zimmer 4
Größe 105 m²
88161 Lindenberg i. Allgäu
Objektdaten
Veröffentlicht am: 23. Februar 2026
Energieausweis: Liegt bei der Besichtigung vor
Danke! Bitte bestätige Deine E-Mail-Adresse – wir haben Dir soeben eine Mail geschickt.
Es gab ein Problem beim Absenden. Bitte versuche es erneut.
Bitte bestätige Deine E-Mail-Adresse, um Updates zu erhalten.
Objektbeschreibung
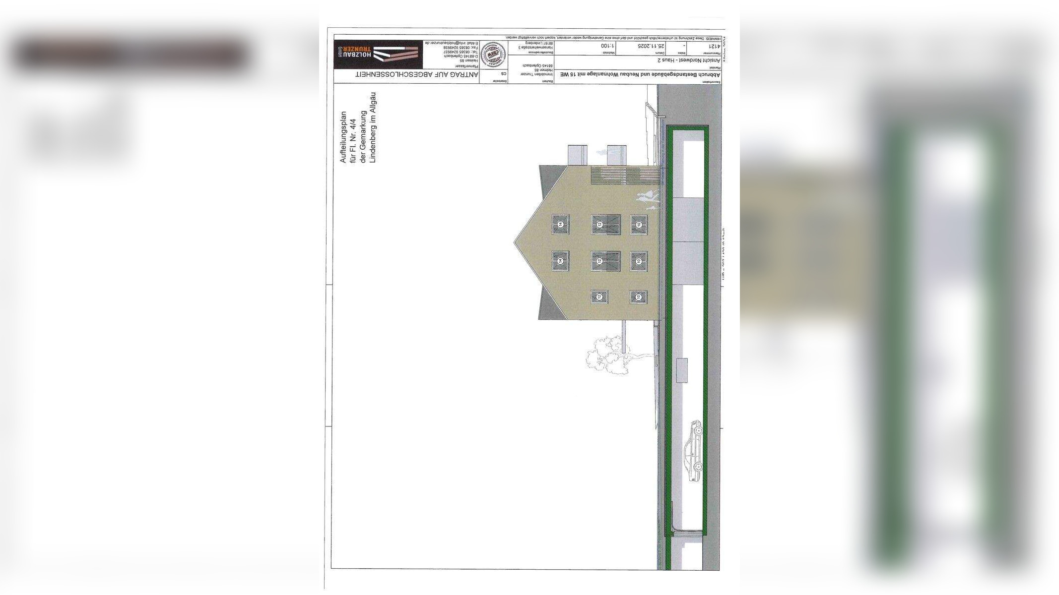
Gute Fördermittel - der Neubau wird im Kfw Standard 40 gebaut.Zusätzliche Abschreibungen im QNG (Qualitätssiegel Nachhaltiges Gebäude) möglich!Auf dem Gelände der ehemaligen Gärtnerei Schwankhart in Lindenberg entstehen 15 Wohneinheiten aufgeteilt in zwei Baukörper. Beide Gebäude fließen in der Tiefgarage zusammen. Haus 1 - neun Einheiten: Erdgeschoss:Nr. 1: 4-Zimmer-ETW mit ca. 106,01m² Wohnfläche mit Terrasse und GartenanteilNr. 2: 3-Zimmer-ETW mit ca. 79,75m² Wohnfläche mit Terrasse und GartenanteilNr. 3: 4-Zimmer-ETW mit ca. 105,37m² Wohnfläche mit Terrasse und Gartenanteil1. Obergeschoss:Nr. 4: 4-Zimmer- ETW mit ca. 107,65m² Wohnfläche mit zwei BalkonsNr. 5: 3-Zimmer-ETW mit ca. 76,98m² Wohnfläche mit Balkon Nr. 6: 4-Zimmer-ETW mit ca. 107,01m² Wohnfläche mit zwei Balkons Dachgeschoss:Nr. 7: 3-Zimmer-ETW mit ca. 95,07m² Wohnfläche mit zwei BalkonsNr. 8: 2-Zimmer-ETW mit ca. 65,98m² Wohnfläche mit BalkonNr. 9: 3-ZImmer-ETW mit ca. 93,37m² Wohnfläche mit zwei BalkonsHaus Nr. 2 - sechs EinheitenErdgeschoss:Nr. 1: 2-Zimmer-ETW mit ca. 66,09m² Wohnfläche mit Terrasse und GartenanteilNr. 2: 3-Zimmer-ETW mit ca. 86,02m² Wohnfläche mit Terrasse und Gartenanteil 1. Obergeschoss:Nr. 3: 2-Zimmer-ETW mit ca. 64,69m² Wohnfläche mit BalkonNr. 4: 3-Zimmer-ETW mit ca. 87,61m² Wohnfläche mit BalkonDachgeschoss:Nr. 5: 3-Zimmer-ETW mit ca. 70,73m² Wohnfläche mit Balkon Nr. 6: 2-Zimmer-ETW mit ca. 65,97m² Wohnfläche mit Balkon 23 Tiefgaragenstellplätze, 15 KellerräumeEnergiebedarf 12 kWh/(m²a) bzw. 16,4 kWh/(m²a)
So funktioniert es
- Alle neuen Anzeigen matchen wir kostenlos mit Deinen Suchparametern.
- Passende Angebote senden wir Dir in einer E-Mail pro Tag.
- Du kannst auch verschiedene Suchen anlegen und Dich jederzeit abmelden. Mehr dazu
Wir haben soeben eine E-Mail mit Deinem Suchauftrag an Dich geschickt. – Klicke in dieser Mail auf den Bestätigungslink und schon geht's los. Prüfe ggf. auch Deinen Spamordner.
Es gab ein Problem beim Absenden Deiner E-Mail-Adresse. Bitte versuche es erneut.
WARNUNG: Bitte bestätige Deine E-Mail-Adresse, um regelmäßige Updates zu erhalten.