Kaufpreis 149.000 €
95326 Kulmbach
Objektdaten
Veröffentlicht am: 24. Februar 2026
Danke! Bitte bestätige Deine E-Mail-Adresse – wir haben Dir soeben eine Mail geschickt.
Es gab ein Problem beim Absenden. Bitte versuche es erneut.
Bitte bestätige Deine E-Mail-Adresse, um Updates zu erhalten.
Objektbeschreibung
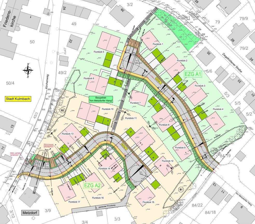
Im Ortsteil Metzdorf in Kulmbach entsteht ein neues Wohngebiet mit insgesamt 17 Baugrundstücken. Grundstück Nr. 8 befindet sich im Bauabschnitt 1 und liegt in sonniger Südhanglage mit unverbaubarem Blick bis zur Plassenburg. Die Südausrichtung bietet optimale Lichtverhältnisse.Die Grundstücksfläche beträgt 493 m² und eignet sich für verschiedene Bebauungsvarianten. Neben einem Einfamilienhaus ist auch die Errichtung eines Doppelhauses grundsätzlich möglich. Ebenso kann ein Mehrfamilienhaus mit bis zu vier Wohneinheiten realisiert werden.Das Grundstück liegt in einem Allgemeinen Wohngebiet mit einer GRZ von 0,4 und einer GFZ von 0,7. Zulässig sind maximal zwei Vollgeschosse. Erlaubte Dachformen sind Satteldächer (10-25° oder 38-48°), versetzte Pultdächer, Pultdächer sowie Flachdächer. Ein Glasfaseranschluss ist vorgesehen. Es besteht kein Bauzwang.Die Lage verbindet ruhiges Wohnen mit guter Infrastruktur. Das Zentrum von Kulmbach ist in etwa fünf Minuten erreichbar.Beispielhafte KostenübersichtZur Orientierung: Ein vergleichbares Musterhaus wie auf den Beispielbildern würde etwa 530.000 € kosten. In Verbindung mit dem Baugrundstück Nr. 8 (149.000 €) ergäbe sich somit ein Gesamtpreis von rund 679.000 €. Dieser Betrag dient als unverbindlicher Richtwert für die Realisierung eines Neubauvorhabens in dieser Lage.
So funktioniert es
- Alle neuen Anzeigen matchen wir kostenlos mit Deinen Suchparametern.
- Passende Angebote senden wir Dir in einer E-Mail pro Tag.
- Du kannst auch verschiedene Suchen anlegen und Dich jederzeit abmelden. Mehr dazu
Wir haben soeben eine E-Mail mit Deinem Suchauftrag an Dich geschickt. – Klicke in dieser Mail auf den Bestätigungslink und schon geht's los. Prüfe ggf. auch Deinen Spamordner.
Es gab ein Problem beim Absenden Deiner E-Mail-Adresse. Bitte versuche es erneut.
WARNUNG: Bitte bestätige Deine E-Mail-Adresse, um regelmäßige Updates zu erhalten.