Die angebotene 2-Zimmer-Eigentumswohnung im klassischen Berliner Altbau verfügt über einen außergewöhnlich großen Wohn- und Empfangszimmer mit beeindruckender Stuckdecke.
Objektdaten
Objektbeschreibung
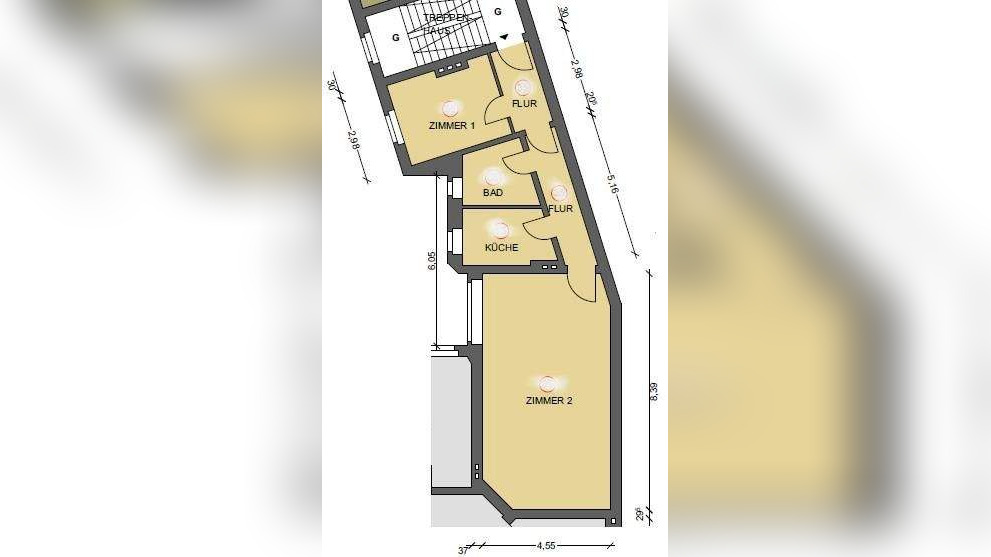
Die angebotene 2-Zimmer-Eigentumswohnung befindet sich im 3. Obergeschoss des ruhigen Seitenflügels eines klassischen Berliner Altbaus. Mit einer Wohnfläche von ca. 68 m² bietet sie eine besondere Kombination aus Großzügigkeit und gemütlicher Rückzugsmöglichkeit. Herzstück der Wohnung ist das außergewöhnlich große Wohn- und Empfangszimmer mit beeindruckender, aufwendig erhaltener Stuckdecke, die dem Raum eine repräsentative und zugleich stilvolle Atmosphäre verleiht. Die Raumhöhe und die historischen Details unterstreichen den typischen Altbaucharme. Das Schlafzimmer ist kompakt geschnitten und eignet sich ideal als ruhiger Rückzugsort. Die Küche ist ebenfalls kleiner gehalten und funktional nutzbar. Das Wannenbad präsentiert sich ebenfalls in kompakter Größe. Durch die Lage im Seitenflügel ist die Wohnung angenehm ruhig – eine echte Besonderheit in dieser zentralen Kreuzberger Lage. Die Immobilie eignet sich sowohl zur Eigennutzung als auch als attraktive Kapitalanlage in einem der gefragtesten Bezirke Berlins. Das Angebot ist provisionspflichtig. Die Provision beträgt 3,57 Prozent des Kaufpreises inklusive der gesetzlichen Mehrwertsteuer. Ein Angebot von Michael Sanne Immobilien Langhansstraße 99 13086 Berlin TEL. 01729915533 Genehmigung nach Paragraph 34c der Gewerbeordnung erteilt durch Bezirksamt Pankow von Berlin (gleichzeitig Aufsichtsbehörde)Ähnliche Angebote
So funktioniert es
- Alle neuen Anzeigen matchen wir kostenlos mit Deinen Suchparametern.
- Passende Angebote senden wir Dir in einer E-Mail pro Tag.
- Du kannst auch verschiedene Suchen anlegen und Dich jederzeit abmelden. Mehr dazu




