Kaufpreis 110.000 €
Zimmer 3
Größe 80 m²
91315 Höchstadt a.d. Aisch
Objektdaten
Veröffentlicht am: 26. Februar 2026
Baujahr: 2028
Energieausweis: Liegt bei der Besichtigung vor
Danke! Bitte bestätige Deine E-Mail-Adresse – wir haben Dir soeben eine Mail geschickt.
Es gab ein Problem beim Absenden. Bitte versuche es erneut.
Bitte bestätige Deine E-Mail-Adresse, um Updates zu erhalten.
Objektbeschreibung
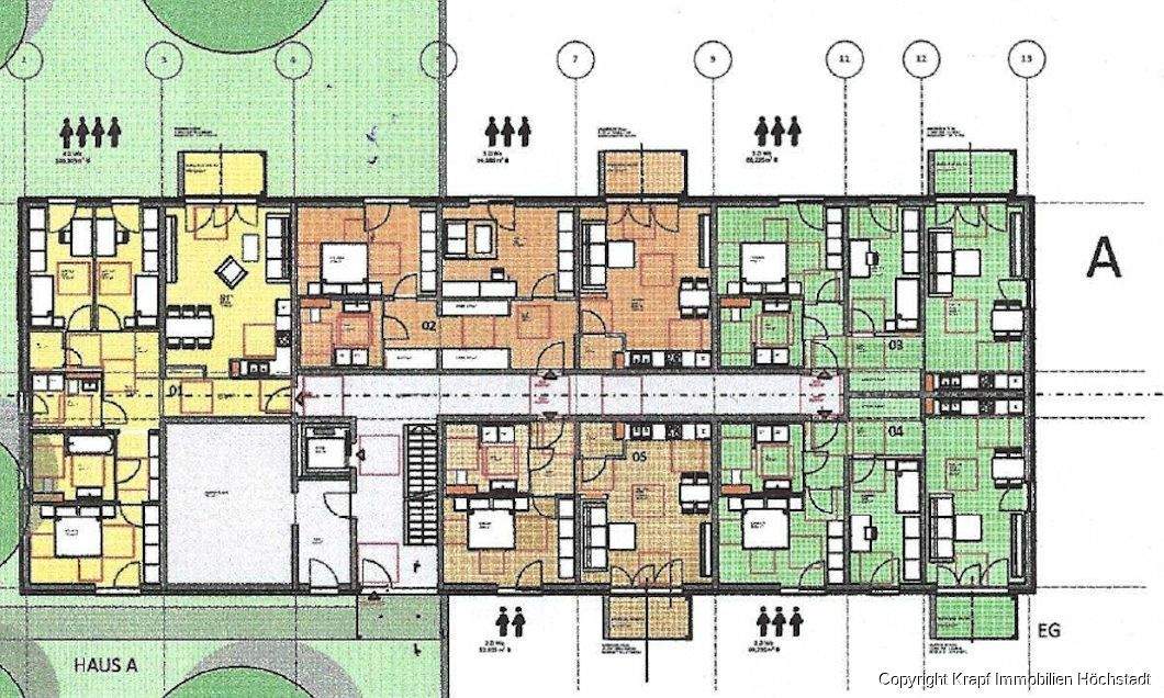
Das Genossenschaftsmodell bietet die attraktive Alternative zum freien Wohnungsmarkt! Wenn Ihr Interesse geweckt ist und Sie mehr darüber wissen wollen, lesen Sie hier weiter:Sie wohnen allein oder zu zweit in einem großen Haus mit Garten und mehreren Etagen? Sie suchen nun eine barrierefreie Wohnung für das Wohnen jetzt und im Alter? Die Wohnungsbaugenossenschaft Aischgrund eG startet demnächst mit ihrem zweiten Bauprojekt in Höchstadt, Etzelskirchen, in ruhiger, naturnaher Lage. Wohnen mit gutem Gewissen nach KfW-40-QNG-Standard - gemäß aktuellen ökologischen und ökonomischen Anforderungen! In der Nähe des BRK Seniorenheims entstehen seitens der Genossenschaft zwei Wohngebäude mit jeweils 12 barrierefreien 2-, 3- und 4-Zimmer-Wohnungen (62 - 107 m² ), jeweils mit Balkon bzw. Terrasse und 1,5 Stellplätzen.Wohnungen stehen noch im EG und OG zur Verfügung, die Penthouse-Wohnungen im Staffelgeschoss der beiden Häuser sind bereits vergeben. Der Baubeginn ist für Anfang 2027, die Fertigstellung für Mitte 2028 geplant. Voraussetzung für das Mieten einer Wohnung mit lebenslangem Wohnrecht und langfristig stabiler Kaltmiete ist eine Mitgliedschaft in und Beteiligung an der Genossenschaft in Form eines Darlehens, abhängig von der Wohnungsgröße.Was ist eine Wohnungsbaugenossenschaft?Eine Wohnungsbaugenossenschaft ist eine Organisation, die darauf abzielt, ihren Mitgliedern bezahlbaren Wohnraum zur Verfügung zu stellen. Sie unterscheidet sich von anderen Wohnformen durch ihr einzigartiges genossenschaftliches Modell, bei dem die Mitglieder gleichzeitig Mieter und Teilhaber sind. Dies bedeutet, dass sie nicht nur in einer Wohnung leben, sondern auch Mitspracherecht bei Entscheidungen der Genossenschaft haben.Eine Wohnungsbaugenossenschaft basiert auf dem Prinzip der Selbstverwaltung. Die Mitglieder wählen einen Vorstand, der die Geschäfte der Genossenschaft führt. Jedes Mitglied hat bei der jährlichen Generalversammlung Stimmrecht, unabhängig von der Anzahl der gezeichneten Anteile. Die WBG Aischgrund eG wird jährlich vom Prüfungsverband der bayerischen Bauindustrie überprüft.Die Finanzierung erfolgt hauptsächlich durch die Genossenschaftsanteile der Mitglieder sowie durch öffentliche Fördermittel und Bankdarlehen. Diese Struktur ermöglicht es, günstigen Wohnraum bereitzustellen, da keine Gewinnmaximierung angestrebt wird. Durch die Mitgliedschaft in einer Genossenschaft erwerben die Mitglieder ein lebenslanges Wohnrecht. Dies bietet eine hohe Sicherheit gegen Kündigungen und Mieterhöhungen, wie sie bei privatwirtschaftlichen Vermietern vorkommen können.
So funktioniert es
- Alle neuen Anzeigen matchen wir kostenlos mit Deinen Suchparametern.
- Passende Angebote senden wir Dir in einer E-Mail pro Tag.
- Du kannst auch verschiedene Suchen anlegen und Dich jederzeit abmelden. Mehr dazu
Wir haben soeben eine E-Mail mit Deinem Suchauftrag an Dich geschickt. – Klicke in dieser Mail auf den Bestätigungslink und schon geht's los. Prüfe ggf. auch Deinen Spamordner.
Es gab ein Problem beim Absenden Deiner E-Mail-Adresse. Bitte versuche es erneut.
WARNUNG: Bitte bestätige Deine E-Mail-Adresse, um regelmäßige Updates zu erhalten.