Kaufpreis 299.000 €
Zimmer 3
Größe 78 m²
17459 Koserow
Objektdaten
Veröffentlicht am: 26. Februar 2026
Energieausweis: Liegt bei der Besichtigung vor
Danke! Bitte bestätige Deine E-Mail-Adresse – wir haben Dir soeben eine Mail geschickt.
Es gab ein Problem beim Absenden. Bitte versuche es erneut.
Bitte bestätige Deine E-Mail-Adresse, um Updates zu erhalten.
Objektbeschreibung
Objektbeschreibung
Koserow --- 500 Meter bis zum Ostseestrand --- Homeoffice --- FeriennutzungDie hier angebotene Wohnung befindet sich im Obergeschoss einer gepflegten Eigentumswohnanlage, zweigeschossig mit ausgebautem Dachgeschoss in L-Form errichtet. Den Wohnungen im Erdgeschoss wurde hofseitig eine Terrassenfläche zugeordnet. Die Wohnungen im Obergeschoss sind mit einem Balkon ausgestattet. Die Balkonanlage ist als Laubengang ausgebildet und zwischen den Wohneinheiten mittels Sichtschutzwand getrennt. Der Innenhofbereich ist mit einer Tiefgarage unterbaut. Die Zufahrt besteht auf der westlichen Giebelseite. Die Tiefgarage umfasst 12 Stellplätze sowie einen separaten Abstellraum für Fahrräder. Im Bereich der Spitzbodenebene befinden sich die den Wohnungen zugeordneten Abstellräume und weitere Gemeinschaftsräume (Heizungsraum).Das Wohnhaus wurde 1996 errichtet und befindet sich in einem guten baulichen Zustand, welcher überwiegend dem Herstellungszeitraum entspricht.
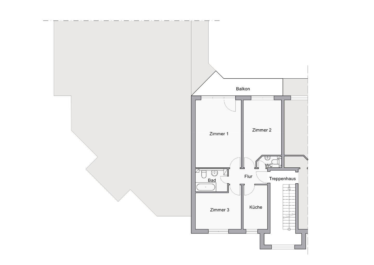
Raumaufteilung
Die Wohnung umfasst auf 78,01 m² (lt. Aufteilungsplan) neben dem Flur, drei Zimmer, die Küche, das Bad sowie das Gäste-WC. In allen Wohnräumen besteht durch Tageslicht erzeugte normale Helligkeit. Die Küche ist durch ein Fenster natürlich zu belüften. Hauptbad und Gäste-WC sind innenliegend.Die Fußböden in Küche, Bad und Flur sind mit Fliesen belegt. In den Wohnräumen ist ein Laminatboden vorhanden. Wand- und Deckenflächen sind überwiegend mit Raufasertapete inkl. Anstrich bekleidet. Über das Zimmer 1 (siehe Grundriss) ist der nach Süden ausgerichtete Balkon mit einer Grundfläche von rd. 11 m² begehbar.Zu der Wohnung gehört ein PKW-Stellplatz in der Tiefgarage.
So funktioniert es
- Alle neuen Anzeigen matchen wir kostenlos mit Deinen Suchparametern.
- Passende Angebote senden wir Dir in einer E-Mail pro Tag.
- Du kannst auch verschiedene Suchen anlegen und Dich jederzeit abmelden. Mehr dazu
Wir haben soeben eine E-Mail mit Deinem Suchauftrag an Dich geschickt. – Klicke in dieser Mail auf den Bestätigungslink und schon geht's los. Prüfe ggf. auch Deinen Spamordner.
Es gab ein Problem beim Absenden Deiner E-Mail-Adresse. Bitte versuche es erneut.
WARNUNG: Bitte bestätige Deine E-Mail-Adresse, um regelmäßige Updates zu erhalten.