Objektdaten
Objektbeschreibung
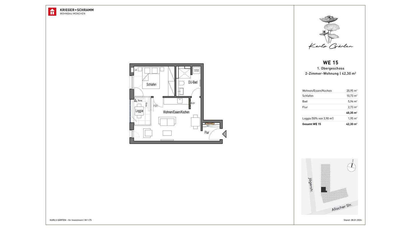
Mit ihren strahlend weißen Fassaden und begrünten Dächern fügen sich die Karls Gärten harmonisch in die grün geprägte Nachbarschaft ein. Helligkeit, Wärme und puristische Eleganz bestimmen das Wohngefühl der 43 Wohneinheiten mit 40 bis 121 Quadratmetern, ergänzt durch zwei Gewerbeeinheiten. Die 2- bis 4-Zimmer-Wohnungen und Penthäuser überzeugen mit durchdachten Grundrissen und einem stimmig kuratierten Interieur, das Behaglichkeit und dauerhaften Komfort schafft - attraktiv für Eigennutzer wie für Kapitalanleger durch langfristige Nachfrage und Wertbeständigkeit. Eine großzügige Tiefgarage mit halbautomatischem Parksystem, drei Treppenhäuser mit Aufzug vom Untergeschoss bis ins Staffelgeschoss sowie private Gärten, Balkone, Loggien oder Dachterrassen unterstreichen den Wohnkomfort. Jede Einheit bietet Raum für individuelle Rückzugsorte im Grünen. Gebaut nach dem Effizienzhaus-40-Standard und zertifiziert mit dem "Qualitätssiegel Nachhaltige Gebäude" (QNG) erfüllen die Karls Gärten einen Nachhaltigkeits- und Qualitätsanspruch, der im Neubau derzeit noch selten ist. Dank der Kombination aus KfW-40-Bauweise und QNG-Zertifizierung profitieren Käufer von attraktiven Fördermöglichkeiten und steuerlichen Vorteilen bei Vermietung. 5 % degressive Afa p.a. + Sonderabschreibung erhöhen die Rendite nach Steuern und beschleunigen den Kapitalrückfluss.So funktioniert es
- Alle neuen Anzeigen matchen wir kostenlos mit Deinen Suchparametern.
- Passende Angebote senden wir Dir in einer E-Mail pro Tag.
- Du kannst auch verschiedene Suchen anlegen und Dich jederzeit abmelden. Mehr dazu




