Kaufpreis 78.000 €
Zimmer 3
Größe 91 m²
07545 Gera
Objektdaten
Veröffentlicht am: 5. März 2026
Frei ab: 11. Februar 2026
Baujahr: 1999
Energieausweis: Liegt bei der Besichtigung vor
Danke! Bitte bestätige Deine E-Mail-Adresse – wir haben Dir soeben eine Mail geschickt.
Es gab ein Problem beim Absenden. Bitte versuche es erneut.
Bitte bestätige Deine E-Mail-Adresse, um Updates zu erhalten.
Objektbeschreibung
Zum Verkauf steht eine gepflegte Eigentumswohnung mit stabilem Mietverhältnis und zusätzlichem Wertsteigerungspotenzial. Die Kombination aus guter Lage, attraktivem Grundriss und Entwicklungsmöglichkeiten bei der Miete macht dieses Objekt besonders interessant für langfristig orientierte Kapitalanleger.
Eckdaten:
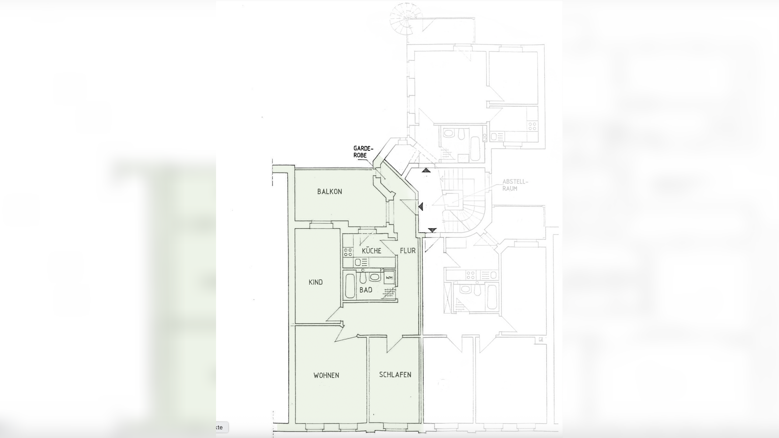
* ca. 91 m² Wohnfläche
* 3 gut geschnittene Zimmer
* großzügiger Balkon
* zeitloses Badezimmer
* heller Laminatboden in allen Wohnräumen
* gepflegter Zustand
* vermietet seit über 10 Jahren
* solide Mieterstruktur
* attraktives Entwicklungspotenzial bei der Miete
* ruhige innerstädtische Lage
Zum Verkauf steht eine solide und großzügig geschnittene 3-Zimmer-Wohnung mit einer Wohnfläche von ca. 90,61 m², gelegen im 2. Obergeschoss eines Mehrfamilienhauses in ruhiger und gewachsener innerstädtischen Wohnlage von Gera.
Die Wohnung überzeugt durch ihren durchdachten Grundriss und einen großzügigen Balkon mit Blick ins Grüne. Alle Räume sind gut proportioniert und bieten vielseitige Nutzungsmöglichkeiten – ideal für eine nachhaltige Kapitalanlage oder perspektivische Eigennutzung.
Ein besonderes Highlight ist der großzügige Balkon, der den Wohnraum erweitert und einen attraktiven Mehrwert für die Mieter darstellt.
Die Wohnung ist mit hellem Laminat ausgestattet, welches den Räumen eine moderne und freundliche Ausstrahlung verleiht. Das Badezimmer entspricht einem zeitgemäßen Standard und befindet sich ebenso wie die gesamte Wohnung in einem gepflegten Zustand.
Das Wohnung ist Teil einer ordnungsgemäß verwalteten Wohnungseigentümergemeinschaft. Das monatliche Hausgeld beträgt derzeit 322 €, hiervon werden 55 € monatlich der Instandhaltungsrücklage zugeführt.
Der auf die Wohnung entfallende Anteil an der Instandhaltungsrücklage beträgt aktuell 6.784 € und stellt eine solide finanzielle Basis für zukünftige Instandhaltungsmaßnahmen dar.
Die Wohnanlage befindet sich insgesamt in einem gepflegten und soliden Allgemeinzustand. Laut vorliegenden Unterlagen sind derzeit keine Sonderumlagen beschlossen oder geplant, ebenso stehen keine größeren Instandhaltungsmaßnahmen oder kostenintensiven Baumaßnahmen an.
Die Wohnung ist seit über 10 Jahren zuverlässig vermietet und bietet Kapitalanlegern ein stabiles und langfristig gesichertes Mietverhältnis.
So funktioniert es
- Alle neuen Anzeigen matchen wir kostenlos mit Deinen Suchparametern.
- Passende Angebote senden wir Dir in einer E-Mail pro Tag.
- Du kannst auch verschiedene Suchen anlegen und Dich jederzeit abmelden. Mehr dazu
Wir haben soeben eine E-Mail mit Deinem Suchauftrag an Dich geschickt. – Klicke in dieser Mail auf den Bestätigungslink und schon geht's los. Prüfe ggf. auch Deinen Spamordner.
Es gab ein Problem beim Absenden Deiner E-Mail-Adresse. Bitte versuche es erneut.
WARNUNG: Bitte bestätige Deine E-Mail-Adresse, um regelmäßige Updates zu erhalten.