Objektdaten
Objektbeschreibung
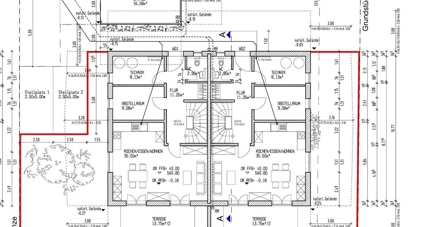
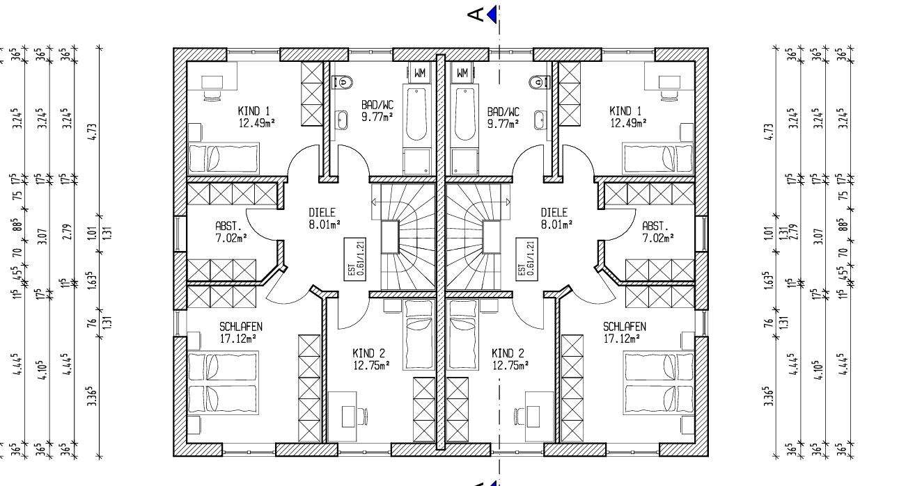
Ein schönes Baugrundstück zur Bebauung für ein Zweifamilienhaus - Einfamilienhaus. In einer sehr ruhigen Lage im Neubaugebiet. Die Baugenehmigung liegt vor, und mit dem Bau wurde bereits begonnen. Erdarbeiten, Bodenplatte, Dämmung, usw. sind fertig. Im Preis enthalten sind:-Bauantrag.-Kosten zur Bodenplatte, Dämmung, Erdbau, usw. -Statik.-KFW 40 QNG-Plus Bauweise. -EG-1.OG mit einer Wohnfläche von 2* 129,50m² = 259m². Wir freuen uns auf Ihr Interesse.Mobil [email protected]So funktioniert es
- Alle neuen Anzeigen matchen wir kostenlos mit Deinen Suchparametern.
- Passende Angebote senden wir Dir in einer E-Mail pro Tag.
- Du kannst auch verschiedene Suchen anlegen und Dich jederzeit abmelden. Mehr dazu




