Objektdaten
Objektbeschreibung
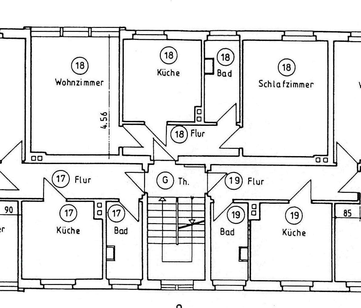
Die Wohnung ist aufgeteilt in Flur, Wohnzimmer, Küche, Tageslichtbad und Schlafzimmer.Das Bad verfügt über einen Fliesenbodenbelag und die weiteren Räume verfügen über moderne Laminatbodenbeläge.Zur Wohnung gehört ein Kellerabteil.So funktioniert es
- Alle neuen Anzeigen matchen wir kostenlos mit Deinen Suchparametern.
- Passende Angebote senden wir Dir in einer E-Mail pro Tag.
- Du kannst auch verschiedene Suchen anlegen und Dich jederzeit abmelden. Mehr dazu





