Kaufpreis 145.000 €
88171 Weiler-Simmerberg
Objektdaten
Veröffentlicht am: 6. März 2026
Danke! Bitte bestätige Deine E-Mail-Adresse – wir haben Dir soeben eine Mail geschickt.
Es gab ein Problem beim Absenden. Bitte versuche es erneut.
Bitte bestätige Deine E-Mail-Adresse, um Updates zu erhalten.
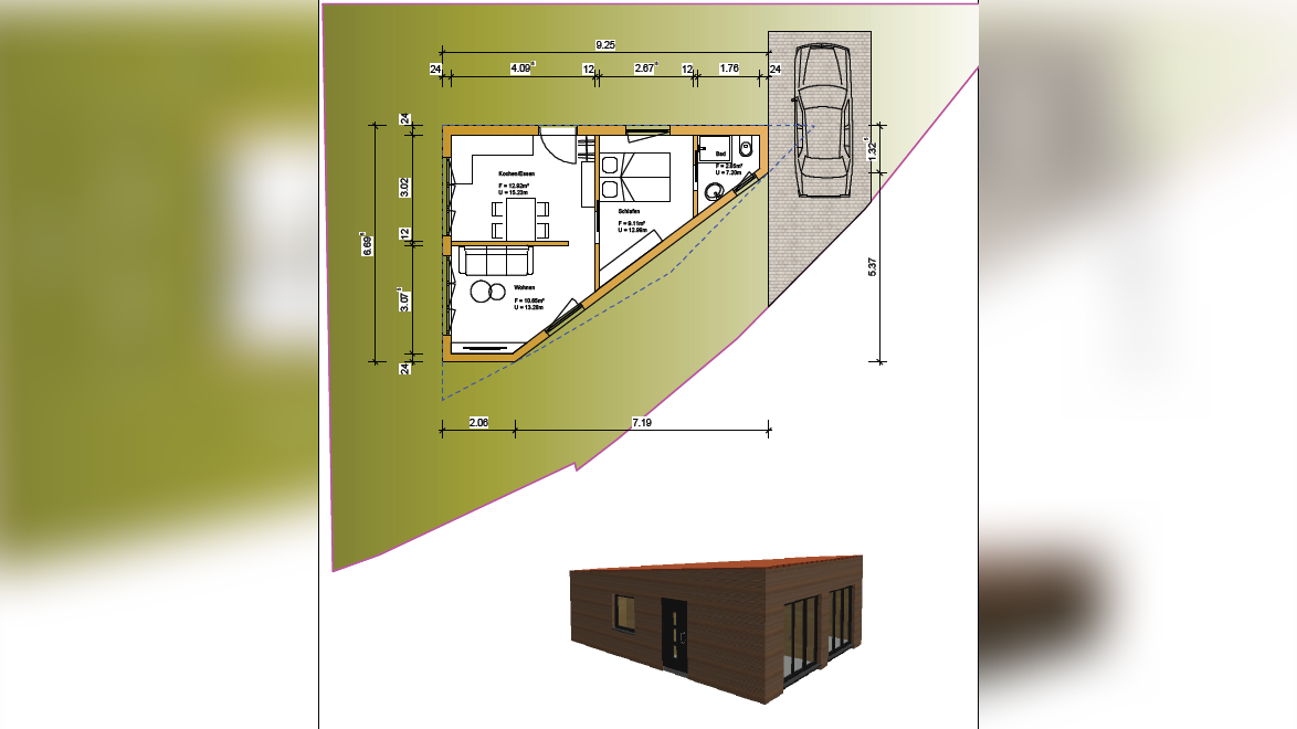
Objektbeschreibung
Mikro-Haus-Grundstück im Westallgäunur Erstwohnsitz möglich"So klein wie nötig" Mikro Haus mit bis zu ca. 40?m² Wohnfläche möglichZwei Grundstücke, 197?m² und 220?m², ortsüblich erschlossen in sonniger Hanglage bieten wir Ihnen die seltene Gelegenheit, ein individuell geplantes Mikro-Haus zu realisieren. Die erhöhte Lage ermöglicht eine fantastische West-Ausrichtung mit Weitblick über ganz Weiler im Westallgäu.Das Grundstück muss noch mit Gabionen professionell terrassierte werden und benötigt noch eine Regenwasser Zisterne. Sie bildet die ideale Grundlage für ein kompaktes barrierefreies Wohnkonzept. Geplant sind Mikro-Haus mit 40?m² und 23 m² Wohnfläche, ergänzt durch eine großzügige Terrasse mit ca. 20?m² - perfekt zum Sonnenuntergang genießen. Die Gebäudehöhe beträgt maximal 4 Meter, mit einem modernen Pultdach.Dieses Grundstück ist ideal für Menschen, die bewusst auf das Wesentliche setzen - naturnah, modern und minimalistisch.Ein attraktives Grundstück für Individualisten oder Paare, die auf kleinem Raum bewusst wohnen wollen - mit Stil, Aussicht und einem durchdachten Nutzungskonzept.
So funktioniert es
- Alle neuen Anzeigen matchen wir kostenlos mit Deinen Suchparametern.
- Passende Angebote senden wir Dir in einer E-Mail pro Tag.
- Du kannst auch verschiedene Suchen anlegen und Dich jederzeit abmelden. Mehr dazu
Wir haben soeben eine E-Mail mit Deinem Suchauftrag an Dich geschickt. – Klicke in dieser Mail auf den Bestätigungslink und schon geht's los. Prüfe ggf. auch Deinen Spamordner.
Es gab ein Problem beim Absenden Deiner E-Mail-Adresse. Bitte versuche es erneut.
WARNUNG: Bitte bestätige Deine E-Mail-Adresse, um regelmäßige Updates zu erhalten.