Objektdaten
Objektbeschreibung
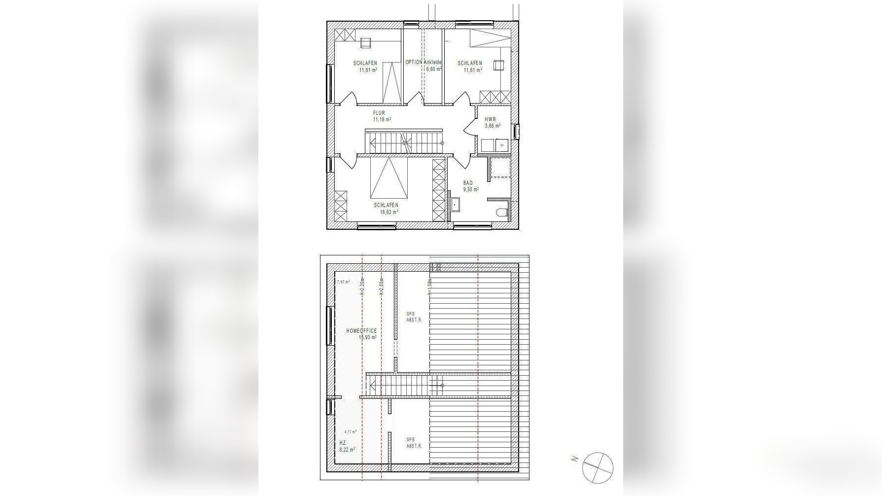
Projektierter Neubau mit Energieeffizenzklasse A+ im Baugebiet Adam-Kaserne Soest – Modernes Einfamilienhaus mit viel Platz und Komfort - sehr ruhige Lage am Ende einer SackgasseBaubeginn Sommer 2026 - Fertigstellung Sommer 2027Dieses attraktive, freistehende Einfamilienhaus bietet auf einer Wohnfläche von 164 m² modernen Wohnkomfort und vielseitige Nutzungsmöglichkeiten. Das Haus wird von einem namhaften Soester Bauträger schlüsselfertig erstellt und besticht durch eine durchdachte Raumaufteilung sowie hochwertige Ausstattung.Erdgeschoss:Das Erdgeschoss überzeugt mit einem großzügigen Wohnbereich, der viel Platz für gemütliche Stunden mit der Familie oder Freunden bietet. Ein separates Gästebad mit Dusche und ein praktischer Technikraum runden das Erdgeschoss ab. Der Flur sorgt für eine klare Struktur und verbindet die einzelnen Bereiche optimal.Obergeschoss:Im Obergeschoss befinden sich drei helle Schlafzimmer, die genug Raum für die ganze Familie bieten. Als Option verfügt eines über einen abgetrennten Ankleidebereich. Das moderne, hochwertige Bad mit Dusche sorgt für ein gehobenes Wohngefühl und lädt zum Entspannen ein. Dachgeschoss:Das Dachgeschoss bietet 24 m² Wohnfläche, die geschickt auf einen Technikraum und ein weiteres Zimmer aufgeteilt sind.Den vorgeschlagenen Grundriss finden Sie auch als PDF-Datei im Download auf dieser Internetseite. Selbstverständlich kann dieser individuell auf Ihre Bedürfnisse zugeschnitten werden, oft ohne Mehrkosten.Grundstück und Außenbereich:Das Grundstück umfasst ca. 345 m² und bietet Platz für einCarport sowie eine 14 m² große Terrasse, die ideal für sommerliche Grillabende oder entspannte Stunden im Freien ist. Die gepflasterte Zufahrt zum Carport und der Terrassenbelag sind bereits im schlüsselfertigen Ausbau enthalten.Besonderheiten: Schlüsselfertige Ausführung inklusive Fußbodenbelägen Eigenleistungen: Gartengestaltung und Malerarbeiten (Anstrich Feinputz Wände und Decken) Moderne, hochwertige AusstattungDieses Haus vereint Funktionalität, Komfort und modernes Design und bietet alles, was man sich für ein Zuhause wünscht. Perfekt für Familien, die Wert auf Qualität und individuelle Gestaltungsmöglichkeiten legen!Das Haus in der Zusammenfassung:- Kaufgrundstück ca. 345m² in besonders ruhiger Lage- Wohnfläche 164m² Folgende Bauleistungen sind im Preis inbegriffen:- schlüsselfertiges, exklusiv ausgestattetes Wohnhaus - lediglich die Malerarbeiten (Wände und Decken) sowie die Gartengestaltung sind als Eigenleistung zu erbringen- Terrassenbelag- Garage samt gepflasterter Zufahrt- moderne Fußbodenheizung und Warmwasser über Luftwärmepumpe- Photovoltaik-Anlage - das Haus hat die Energieeffizienzklasse A+- der Käufer zahlt keine Courtage Baubeginn ist im Sommer 2026. Schon im Sommer 2027 ist dieses Haus bezugsfertig.Im Baugebiet Adam-Kaserne sind nur noch wenige freie Grundstücke vorhanden - sichern Sie sich jetzt Ihr Haus in diesem besonderen Wohnviertel.Gerne vereinbaren wir einen individuellen Besichtigungstermin des Bauplatzes mit Ihnen.Bitte senden Sie uns über diese Internetseite eine Kontaktanfrage mit Name, Anschrift und unbedingt Festnetz- und Mobilrufnummer - oder eine Mail an:[email protected] Ansprechpartner:Sylvia SehnerGeschäftsführungImmobilienmaklerinTel. 02924 / 30 90 638Mobil: 01522 / 86 19 415eMail: [email protected] SehnerDiplom-Verwaltungswirt (FH)ImmobilienmaklerTel. 02924 / 30 90 638Mobil: 01522 / 86 19 416eMail: [email protected]Ähnliche Angebote
So funktioniert es
- Alle neuen Anzeigen matchen wir kostenlos mit Deinen Suchparametern.
- Passende Angebote senden wir Dir in einer E-Mail pro Tag.
- Du kannst auch verschiedene Suchen anlegen und Dich jederzeit abmelden. Mehr dazu




