Kaufpreis 408.000 €
Zimmer 3
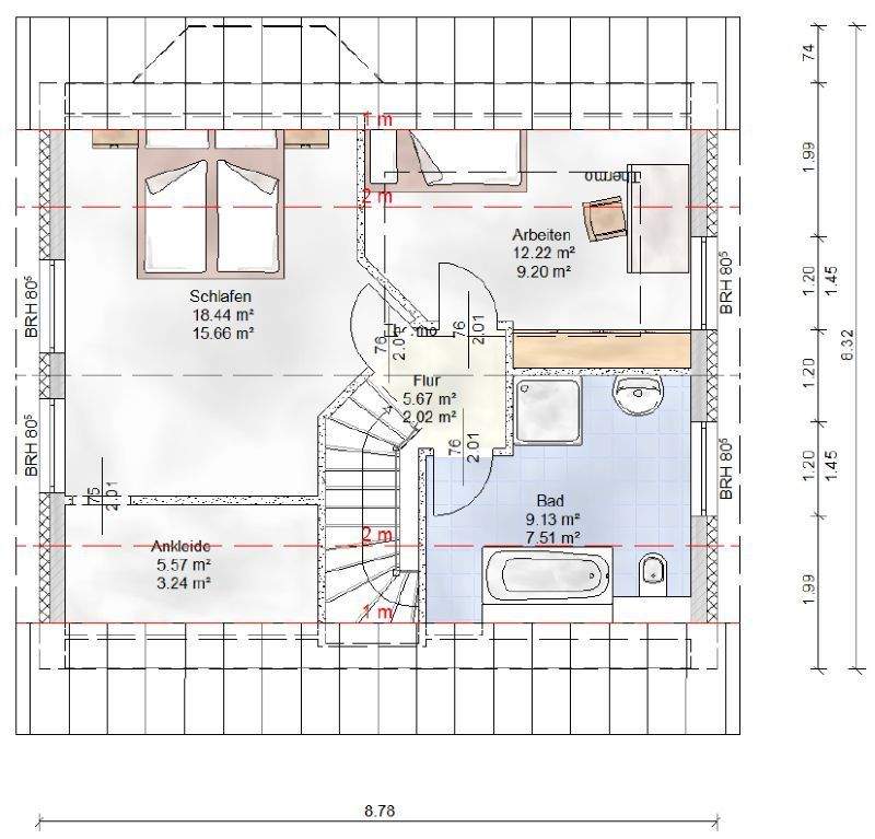
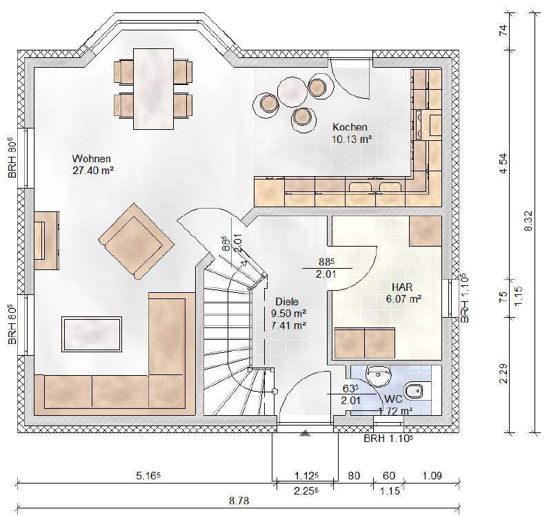
Größe 107 m²
17440 Lütow
Objektdaten
Veröffentlicht am: 13. März 2026
Energieausweis: Liegt bei der Besichtigung vor
Danke! Bitte bestätige Deine E-Mail-Adresse – wir haben Dir soeben eine Mail geschickt.
Es gab ein Problem beim Absenden. Bitte versuche es erneut.
Bitte bestätige Deine E-Mail-Adresse, um Updates zu erhalten.
Objektbeschreibung
Angeboten werden verschieden große Grundstücke, zwischen 300qm und 600qm, zur Dauernutzung und zur Feriennutzung.
*Maßgeschneidertes und individuelles Haus
*Transparente Verträge
*Festpreisgarantie
*Garantierte Bauzeit
*Alles aus einer Hand
*Qualitätsgarantie
*Garantierte Vertragserfüllung
*Schlüsselfertiges Bauen
*1-Jahres-Gebäudecheck
Hinweis: Der Bebauungsplan der Gemeinde sieht hier rote Dachziegel vor. Selbstverständlich haben Sie hier eine Auswahl in verschiedenen Rottönen.
Baunebenkosten, wie z.B. Notarkosten, Steuern, Gebühren, Anschlusskosten, Außenanlagen u.s.w., sind im Kaufpreis nicht enthalten.
So funktioniert es
- Alle neuen Anzeigen matchen wir kostenlos mit Deinen Suchparametern.
- Passende Angebote senden wir Dir in einer E-Mail pro Tag.
- Du kannst auch verschiedene Suchen anlegen und Dich jederzeit abmelden. Mehr dazu
Wir haben soeben eine E-Mail mit Deinem Suchauftrag an Dich geschickt. – Klicke in dieser Mail auf den Bestätigungslink und schon geht's los. Prüfe ggf. auch Deinen Spamordner.
Es gab ein Problem beim Absenden Deiner E-Mail-Adresse. Bitte versuche es erneut.
WARNUNG: Bitte bestätige Deine E-Mail-Adresse, um regelmäßige Updates zu erhalten.