Warmmiete 1.630 €
Zimmer 3
Größe 86 m²
78224 Singen (Hohentwiel)
Objektdaten
Veröffentlicht am: 13. März 2026
Kaltmiete 1.430 €
Baujahr: 1968
Energieausweis: Liegt bei der Besichtigung vor
Danke! Bitte bestätige Deine E-Mail-Adresse – wir haben Dir soeben eine Mail geschickt.
Es gab ein Problem beim Absenden. Bitte versuche es erneut.
Bitte bestätige Deine E-Mail-Adresse, um Updates zu erhalten.
Objektbeschreibung
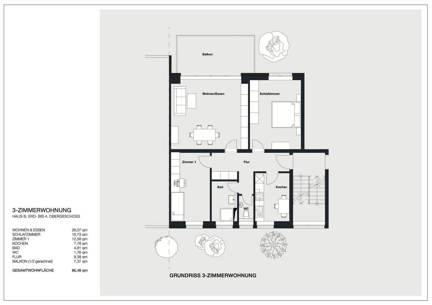
Diese 3-Zimmer-Wohnung mit einer Wohnfläche von 86,48 m² wird erstmals nach umfassender Kernsanierung vermietet und steht ab sofort zur Verfügung.Die Wohnung überzeugt durch ihre hochwertige Ausstattung sowie eine durchdachte Raumaufteilung. Sie verfügt über eine separate Küche sowie ein großzügiges Wohn- und Esszimmer mit Zugang zum Balkon, der zusätzlichen Wohnraum im Freien bietet.Neben dem hellen Wohnbereich stehen zwei Schlafzimmer zur Verfügung, die flexibel als Schlaf-, Kinder- oder Arbeitszimmer genutzt werden können. Das modern gestaltete Tageslichtbad ist mit einer Dusche ausgestattet. Zusätzlich steht eine separate Toilette zur Verfügung, was den Wohnkomfort insbesondere für Familien oder Gäste deutlich erhöht.In den Wohnräumen wurde hochwertiger Parkettboden verlegt, der für eine warme und einladende Atmosphäre sorgt. Eine moderne Markeneinbauküche (zzgl. 50,00 € monatlich) ergänzt das stilvolle Wohnkonzept.Die Wohnung entspricht dem Energieeffizienzstandard KfW 55 und wird nachhaltig über eine Luft-Wasser-Wärmepumpe beheizt.Zur Wohnung gehören außerdem ein eigener Kellerraum sowie ein gemeinschaftlicher Wasch- und Trockenraum.Parkmöglichkeit: Nach Abschluss der Sanierung der Garagenanlage kann optional ein Stellplatz für 80,00 € monatlich angemietet werden.
So funktioniert es
- Alle neuen Anzeigen matchen wir kostenlos mit Deinen Suchparametern.
- Passende Angebote senden wir Dir in einer E-Mail pro Tag.
- Du kannst auch verschiedene Suchen anlegen und Dich jederzeit abmelden. Mehr dazu
Wir haben soeben eine E-Mail mit Deinem Suchauftrag an Dich geschickt. – Klicke in dieser Mail auf den Bestätigungslink und schon geht's los. Prüfe ggf. auch Deinen Spamordner.
Es gab ein Problem beim Absenden Deiner E-Mail-Adresse. Bitte versuche es erneut.
WARNUNG: Bitte bestätige Deine E-Mail-Adresse, um regelmäßige Updates zu erhalten.