Kaufpreis 207.000 €
Zimmer 1
Größe 48 m²
13055 Berlin
Objektdaten
Veröffentlicht am: 14. März 2026
Energieausweis: Liegt bei der Besichtigung vor
Danke! Bitte bestätige Deine E-Mail-Adresse – wir haben Dir soeben eine Mail geschickt.
Es gab ein Problem beim Absenden. Bitte versuche es erneut.
Bitte bestätige Deine E-Mail-Adresse, um Updates zu erhalten.
Objektbeschreibung
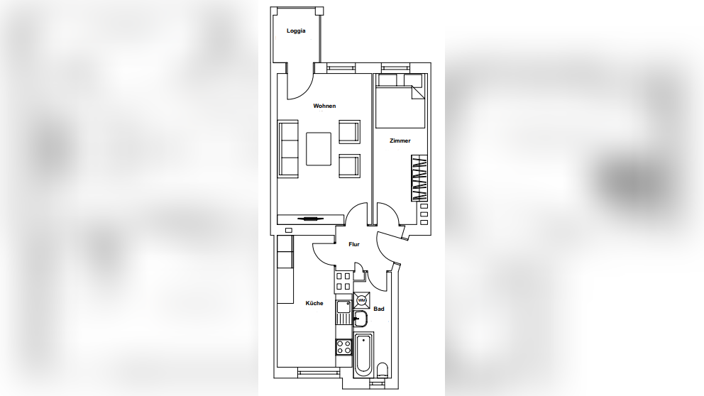
Die Wohnung liegt im malerischen Gertrudenhof, einem gepflegten und ruhigen Innenhofensemble, das den Gebäuden eine private und angenehme Atmosphäre verleiht. Auf rund 48,5 m² präsentiert sich eine gut geschnittene 1,5-Zimmer-Wohnung mit einem großen Wohnzimmer, an das ein nach Süden ausgerichteter Wintergarten anschließt. Von hier aus blickt man direkt in die grüne, parkähnliche Anlage des Hofes. Auch das Schlafzimmer orientiert sich zur ruhigen Hofseite und bietet einen entspannten Rückzugsort.Das Tageslichtbad ist praktisch angelegt, mit weißen Fliesen ausgestattet und verfügt über eine Badewanne. Zusätzlichen Stauraum gibt es oberhalb der Badezimmertür, während ein eigener Wasser- und Stromanschluss für die Waschmaschine am Waschbecken installiert ist. Gegenüber dem Eingangsbereich liegt die funktional geschnittene Küche, die ausreichend Platz für eine Küchenzeile sowie eine kleine Essgruppe bietet.Die Wohnung ist seit rund 18 Jahren zuverlässig vermietet. Die Mieterin, eine Rentnerin, schätzt die hervorragende Infrastruktur des Quartiers - mit kurzen Wegen zu Einkaufsmöglichkeiten, Ärzten und öffentlichen Verkehrsmitteln - und sorgt für eine stabile Mietsituation. Die jährlichen Nettokaltmieteinnahmen belaufen sich aktuell auf 4.565,52 €, was einer Rendite von ca. 2,2 % auf den Kaufpreis von 207.000 € entspricht. Die solide Bewohnersituation, die gewachsene Mietbeziehung und der funktionale Grundriss machen die Wohnung zu einem unkomplizierten Investment mit langfristig gutem Ertragspotenzial.Für Eigennutzer, die perspektivisch selbst einziehen möchten, bietet das Objekt eine zusätzliche Option: Nach Eigentumsumschreibung ist eine Eigenbedarfskündigung im Rahmen der gesetzlichen Vorgaben nach neun Monaten möglich. In Summe handelt es sich um eine gepflegte, nachhaltig vermietbare Wohnung in einer gefragten Lage von Hohenschönhausen - ideal für Anleger, die Wert auf ein solides, ruhiges Investment mit stabilen Jahresmieteinnahmen legen.
So funktioniert es
- Alle neuen Anzeigen matchen wir kostenlos mit Deinen Suchparametern.
- Passende Angebote senden wir Dir in einer E-Mail pro Tag.
- Du kannst auch verschiedene Suchen anlegen und Dich jederzeit abmelden. Mehr dazu
Wir haben soeben eine E-Mail mit Deinem Suchauftrag an Dich geschickt. – Klicke in dieser Mail auf den Bestätigungslink und schon geht's los. Prüfe ggf. auch Deinen Spamordner.
Es gab ein Problem beim Absenden Deiner E-Mail-Adresse. Bitte versuche es erneut.
WARNUNG: Bitte bestätige Deine E-Mail-Adresse, um regelmäßige Updates zu erhalten.